Продажа трехкомнатной квартиры в доме 2023 года, на улице Садовая в городе Блонь

Опубликовано Mar 31, 2026 | Число просмотров: 11 | Номер: #333321

58,000$

или 54425 € или 189022 бел.руб.
Область:   Минская область
Город:   Блонь
Улица:   Садовая
Тип аренды:   Квартиры
Комнат:   3
Общая площадь:   128.1
Жилая площадь:   39.50
Площадь кухни:   18.00
Балкон:   Нет
Высота потолков:   2,7
Этаж:   1
Этажность дома:   1
Материал стен:   Блочный
Год постройки:   2023
Описание

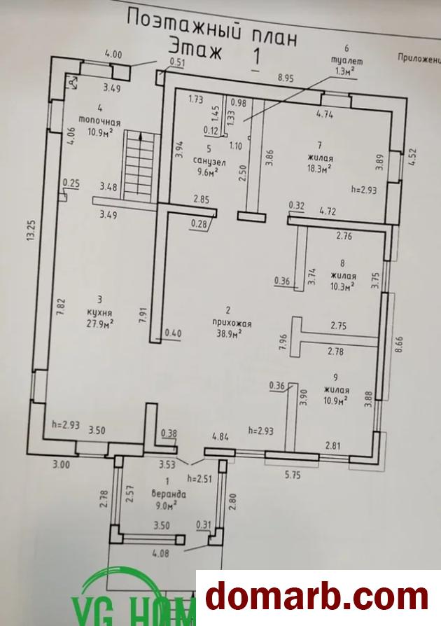
Продается дом. Площадь дома по СНБ 156.3 м2, общая площадь - 128.1 м2; жилая площадь 39,5 м2; гостиная общей площадью 38.9 м2; кухня-столовая площадью 27.9 м2; 3 раздельные жилые комнаты (площадью 18.3/10.3 и 10.9 м2); санузел 9.6 м2; веранда 9,0 м2; топочная 10,9 м2; подвальное помещение 13,8 м2 имеет вход из топочной по капитальной лестнице и состоит из 2-х помещений для консервации и хранения овощей. Есть возможность увеличения жилой площади при необходимости за счет мансардного этажа на 43м2.

Характеристики:

Полная реконструкция дома была закончена в 2023 году, наружные стены выполнены из газосиликатного блока 300 мм, утеплитель каменная вата 70 мм, снаружи декоративная штукатурка ; фундамент - ленточный железобетон 300 мм; под домом сделан подвальный этаж в полный рост; крыша металлочерепица; окна двухкамерные стеклопакеты. В доме выполнена чистовая отделка, стены оштукатурены и ошпаклёваны; потолки подготовлены к покраске; стяжка пола с утеплением 5 см. В доме грамотная планировка – большая гостиная и кухня-столовая, три жилые комнаты и мансардный этаж (возможность увеличения жилой площади).

Коммуникации: разведены по дому: газ(система отопления: установлены двухконтурный газовый котел и радиаторы в комнатах), электричество 220/380 Вт разведено по всему дому; канализация местная; водоснабжение из скважины глубиной 30 м.( установлен фильтр тонкой очистки воды), так же установлен бойлер косвенного нагрева воды, расширительный бак; к дому проведено оптоволокно, а значит у вас будет скоростной интернет и телефон. Есть точка выхода воды снаружи дома для хознужд.

Транспортное сообщение: недалеко от дома остановка общественного транспорта, откуда ездят маршрутки, автобусы, электрички с М.Горки; на машине около 45 минут до Минска по скоростной трассе М-5. Отличные подъездные пути, асфальтированная дорога почти до самого дома.

Инфраструктура: дом расположен в центральной части аг Блонь, который граничит с райцентром г.Марьина Горка, до которого 10 мин пешком до или 3 мин езды, где находятся школы, детские сады, банки, почта, аптеки, поликлиника, больница, продуктовые, хозяйственные , строительные магазины и др., рынки, бассейн, кафе. Также недалеко от дома находится станция проката байдарок, для сплавов по реке Титовка и располагается центр экологического туризма «Акварель»: комплекс развлечений для детей и взрослых, зоосад, рыбалка, рестораны и кафе – отличное место для отдыха.

Чистая продажа!

Тихие, чистые места, рядом лес с ягодами и грибами. Недалеко река Титовка с маршрутами для сплавов на байдарках и озера с рыбой.

Область:   Минская область
Город:   Блонь
Улица:   Садовая
Тип аренды:   Квартиры
Комнат:   3
Общая площадь:   128.1
Жилая площадь:   39.50
Площадь кухни:   18.00
Балкон:   Нет
Высота потолков:   2,7
Этаж:   1
Этажность дома:   1
Материал стен:   Блочный
Год постройки:   2023
Удобства
  Вторичка без отделки   Блочный дом 2023 года
  Без балкона (лоджии)   Без выделенного парковочного места
  Потолки 2,7 метра
Контактная информация
Контактное имя: Продавец
Телефон: +375291540517
Все объявления этого пользователя

Посмотреть на карте


Описание

Продается дом. Площадь дома по СНБ 156.3 м2, общая площадь - 128.1 м2; жилая площадь 39,5 м2; гостиная общей площадью 38.9 м2; кухня-столовая площадью 27.9 м2; 3 раздельные жилые комнаты (площадью 18.3/10.3 и 10.9 м2); санузел 9.6 м2; веранда 9,0 м2; топочная 10,9 м2; подвальное помещение 13,8 м2 имеет вход из топочной по капитальной лестнице и состоит из 2-х помещений для консервации и хранения овощей. Есть возможность увеличения жилой площади при необходимости за счет мансардного этажа на 43м2.

Характеристики:

Полная реконструкция дома была закончена в 2023 году, наружные стены выполнены из газосиликатного блока 300 мм, утеплитель каменная вата 70 мм, снаружи декоративная штукатурка ; фундамент - ленточный железобетон 300 мм; под домом сделан подвальный этаж в полный рост; крыша металлочерепица; окна двухкамерные стеклопакеты. В доме выполнена чистовая отделка, стены оштукатурены и ошпаклёваны; потолки подготовлены к покраске; стяжка пола с утеплением 5 см. В доме грамотная планировка – большая гостиная и кухня-столовая, три жилые комнаты и мансардный этаж (возможность увеличения жилой площади).

Коммуникации: разведены по дому: газ(система отопления: установлены двухконтурный газовый котел и радиаторы в комнатах), электричество 220/380 Вт разведено по всему дому; канализация местная; водоснабжение из скважины глубиной 30 м.( установлен фильтр тонкой очистки воды), так же установлен бойлер косвенного нагрева воды, расширительный бак; к дому проведено оптоволокно, а значит у вас будет скоростной интернет и телефон. Есть точка выхода воды снаружи дома для хознужд.

Транспортное сообщение: недалеко от дома остановка общественного транспорта, откуда ездят маршрутки, автобусы, электрички с М.Горки; на машине около 45 минут до Минска по скоростной трассе М-5. Отличные подъездные пути, асфальтированная дорога почти до самого дома.

Инфраструктура: дом расположен в центральной части аг Блонь, который граничит с райцентром г.Марьина Горка, до которого 10 мин пешком до или 3 мин езды, где находятся школы, детские сады, банки, почта, аптеки, поликлиника, больница, продуктовые, хозяйственные , строительные магазины и др., рынки, бассейн, кафе. Также недалеко от дома находится станция проката байдарок, для сплавов по реке Титовка и располагается центр экологического туризма «Акварель»: комплекс развлечений для детей и взрослых, зоосад, рыбалка, рестораны и кафе – отличное место для отдыха.

Чистая продажа!

Тихие, чистые места, рядом лес с ягодами и грибами. Недалеко река Титовка с маршрутами для сплавов на байдарках и озера с рыбой.