Продажа дома, на улице Центральная 3 в городе Гореновка

Опубликовано Apr 01, 2026 | Число просмотров: 11 | Номер: #333587

420,000$

или 394109 € или 1368780 бел.руб.
Область:   Минская область
Город:   Гореновка
Улица:   Центральная
Дом:   3
Тип аренды:   Дома, коттеджи
Общая площадь:   140.9
Жилая площадь:   126.10
Год постройки:   2021
Площадь участка:   16.22 соток
Тип объекта:   Коттедж
Описание

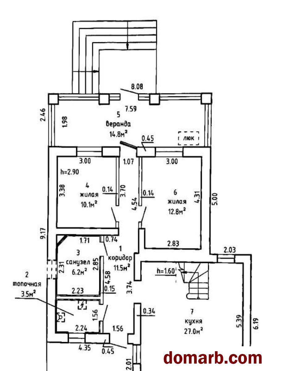
Благоустроенный коттедж для круглогодичного проживания Благоустроенный коттедж для круглогодичного проживания в 25 км от Минска, в оазисе природы и спокойствия. Расположен в газифицированной деревне Гореновка, Брестское направление.   Дом 2021  года постройки, общая площадь -140,9 кв.м.: - 2 (два) этажа: на 1 этаже – кухня-гостиная 27 кв.м, две жилые комнаты(10.1 кв.м. и 12.8 кв.м.), веранда застекленная по всему периметру 14.8 кв.м. с выходом на улицу, санузел 6.2 кв.м., техкомната для управления домовыми коммуникациями (топочная). Напольное покрытие на 1 этаже –плитка с подогревом; на 2 этаже (мансардный этаж) - обустроенная бильярдная 26.7 кв.м. и комната отдыха 24.5 кв.м.; - дизайнерский ремонт, высококачественные материалы, итальянская плитка, камень, итальянские обои, качественная мебель и бытовая техника; - утеплен и оштукатурен снаружи и внутри; - возведен из керамзитобетонного блока, с наружным утеплением пеноплексом 100 мм + фасадная сетка, затем декоративная штукатурка; - разведена вся электрика согласно проекту; - вода в доме из своей скважины и центральная (по выбору); - газовое отопление; - асфальтированная дорога к дому; -въезд на участок оборудован откатными воротами с дистанционным управлением; -по периметру дом огорожен бетонным забором с теснением «под камень».   Благоустроенный участок - 0,1622 га: - правильной ровной формы; - с ландшафтным дизайном; - покрытие дорожек, парковки из крупноразмерной тротуарной плитки; - подсветка участка; - на участке различные плодовоягодные насаждения ( яблони, груши, черешня, кизил и др.), а также цветовые декоративные островки; - декоративный деревянный мостик с подсветкой над маленьким прудиком; - при въезде на участок справа и слева высажены туи; - разведены трубы по участку для удобного полива.   На участке, также, расположены: - 2(двух) этажная БАНЯ с внутренним отоплением, санузлом, душевой и гостевой комнатой с лоджией на втором этаже; - крытый большой бассейн с подогревом воды и подсветкой - большая летняя кухня с барбекю, оснащена роль-шторами, позволяющими в летний период использовать её как беседку для отдыха; - гостевой домик с санузлом; - большая теплица; - домик  для технического инвентаря.   Хорошие подъездные пути  к дому, асфальтированная дорога, в пешей доступности Белоцапельный пруд. Дом построен с любовью и знанием  дела, использованы качественные материалы и учтены все современные технологии! Это место — настоящая мечта для тех, кто ценит природу, свежий воздух, тишину и комфорт. Вокруг царит гармония и спокойствие.
Приглашаем на просмотр! Вы будете влюблены в это место!
Звоните, обязательно согласуем показы в удобное для Вас время, ответим на все интересующие вопросы. Окажем помощь в продаже вашей недвижимости и кредитовании.
Полное юридическое сопровождение сделки гарантируем!
Видеонаблюдение снаружи дома, регулировка температурного баланса в доме удаленно с телефона.

Область:   Минская область
Город:   Гореновка
Улица:   Центральная
Дом:   3
Тип аренды:   Дома, коттеджи
Общая площадь:   140.9
Жилая площадь:   126.10
Год постройки:   2021
Площадь участка:   16.22 соток
Тип объекта:   Коттедж
Удобства
  Свет   Вода
  Газ
Контактная информация
Контактное имя: Продавец
Телефон: 375293812220
Все объявления этого пользователя

Посмотреть на карте


Описание

Благоустроенный коттедж для круглогодичного проживания Благоустроенный коттедж для круглогодичного проживания в 25 км от Минска, в оазисе природы и спокойствия. Расположен в газифицированной деревне Гореновка, Брестское направление.   Дом 2021  года постройки, общая площадь -140,9 кв.м.: - 2 (два) этажа: на 1 этаже – кухня-гостиная 27 кв.м, две жилые комнаты(10.1 кв.м. и 12.8 кв.м.), веранда застекленная по всему периметру 14.8 кв.м. с выходом на улицу, санузел 6.2 кв.м., техкомната для управления домовыми коммуникациями (топочная). Напольное покрытие на 1 этаже –плитка с подогревом; на 2 этаже (мансардный этаж) - обустроенная бильярдная 26.7 кв.м. и комната отдыха 24.5 кв.м.; - дизайнерский ремонт, высококачественные материалы, итальянская плитка, камень, итальянские обои, качественная мебель и бытовая техника; - утеплен и оштукатурен снаружи и внутри; - возведен из керамзитобетонного блока, с наружным утеплением пеноплексом 100 мм + фасадная сетка, затем декоративная штукатурка; - разведена вся электрика согласно проекту; - вода в доме из своей скважины и центральная (по выбору); - газовое отопление; - асфальтированная дорога к дому; -въезд на участок оборудован откатными воротами с дистанционным управлением; -по периметру дом огорожен бетонным забором с теснением «под камень».   Благоустроенный участок - 0,1622 га: - правильной ровной формы; - с ландшафтным дизайном; - покрытие дорожек, парковки из крупноразмерной тротуарной плитки; - подсветка участка; - на участке различные плодовоягодные насаждения ( яблони, груши, черешня, кизил и др.), а также цветовые декоративные островки; - декоративный деревянный мостик с подсветкой над маленьким прудиком; - при въезде на участок справа и слева высажены туи; - разведены трубы по участку для удобного полива.   На участке, также, расположены: - 2(двух) этажная БАНЯ с внутренним отоплением, санузлом, душевой и гостевой комнатой с лоджией на втором этаже; - крытый большой бассейн с подогревом воды и подсветкой - большая летняя кухня с барбекю, оснащена роль-шторами, позволяющими в летний период использовать её как беседку для отдыха; - гостевой домик с санузлом; - большая теплица; - домик  для технического инвентаря.   Хорошие подъездные пути  к дому, асфальтированная дорога, в пешей доступности Белоцапельный пруд. Дом построен с любовью и знанием  дела, использованы качественные материалы и учтены все современные технологии! Это место — настоящая мечта для тех, кто ценит природу, свежий воздух, тишину и комфорт. Вокруг царит гармония и спокойствие.
Приглашаем на просмотр! Вы будете влюблены в это место!
Звоните, обязательно согласуем показы в удобное для Вас время, ответим на все интересующие вопросы. Окажем помощь в продаже вашей недвижимости и кредитовании.
Полное юридическое сопровождение сделки гарантируем!
Видеонаблюдение снаружи дома, регулировка температурного баланса в доме удаленно с телефона.

Вам может быть интересно