Продажа коммерческой недвижимости, на улице Строителей ул 43 в городе Борисов

Опубликовано Apr 01, 2026 | Число просмотров: 7 | Номер: #334110

75,000$

или 70377 € или 244425 бел.руб.
Область:   Минская область
Город:   Борисов
Улица:   Строителей ул
Дом:   43
Тип аренды:   Коммерческая
Общая площадь:   85.3
Состояние:   Вторичное
Тип объекта:   Магазины, торговые помещения
Описание

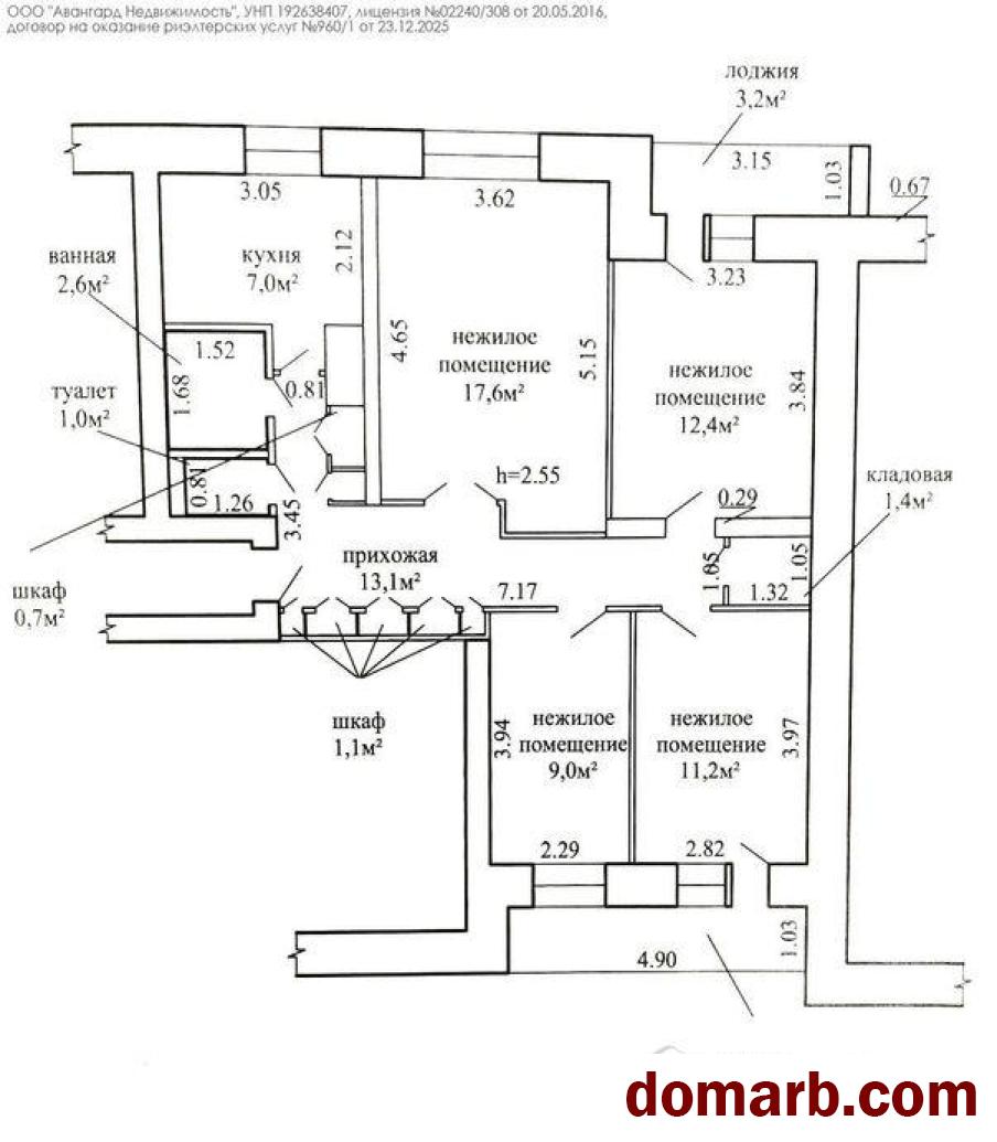
Предлагаем вашему вниманию нежилое помещение 85.3 кв.м на 1-м этаже в г. Борисов ул. Строителей 43.nУникальное предложение для вашего будущего бизнеса или инвестиций. Помещение находится в самой развитой части города. Есть разрешение исполкома по присвоению назначения “здравоохранение и/или предоставление социальных услуг”. Это позволит организовать такие виды бизнеса как медицинские услуги, стоматология, аптека и др.nОсновные характеристики объекта:n- уникальная площадь 85.3 кв.м;n- первый этаж;n- планировка помещения имеет кабинетную систему с одной несущей стеной, что дает свободу для создания оптимальной планировки под ваши индивидуальные запросы.nЛокация с развитой инфраструктурой: Рядом находится торговый центр"Мандарин", универмаг "Веста", автовокзал, остановки общественного транспорта, активный пешеходный трафик.nТехническая база:n- проведенная электрическая мощность 8 кВт;n- есть центральное водоснабжение и канализация;n- оптоволокно.nСобственник не является плательщиком НДС.nЗвоните!nБолее подробную информацию уточняйте по номеру телефона/ в мессенджерах.

Область:   Минская область
Город:   Борисов
Улица:   Строителей ул
Дом:   43
Тип аренды:   Коммерческая
Общая площадь:   85.3
Состояние:   Вторичное
Тип объекта:   Магазины, торговые помещения
Контактная информация
Контактное имя: Продавец
Телефон: 375296402736
Все объявления этого пользователя

Посмотреть на карте


Описание

Предлагаем вашему вниманию нежилое помещение 85.3 кв.м на 1-м этаже в г. Борисов ул. Строителей 43.nУникальное предложение для вашего будущего бизнеса или инвестиций. Помещение находится в самой развитой части города. Есть разрешение исполкома по присвоению назначения “здравоохранение и/или предоставление социальных услуг”. Это позволит организовать такие виды бизнеса как медицинские услуги, стоматология, аптека и др.nОсновные характеристики объекта:n- уникальная площадь 85.3 кв.м;n- первый этаж;n- планировка помещения имеет кабинетную систему с одной несущей стеной, что дает свободу для создания оптимальной планировки под ваши индивидуальные запросы.nЛокация с развитой инфраструктурой: Рядом находится торговый центр"Мандарин", универмаг "Веста", автовокзал, остановки общественного транспорта, активный пешеходный трафик.nТехническая база:n- проведенная электрическая мощность 8 кВт;n- есть центральное водоснабжение и канализация;n- оптоволокно.nСобственник не является плательщиком НДС.nЗвоните!nБолее подробную информацию уточняйте по номеру телефона/ в мессенджерах.

Вам может быть интересно