Продажа двухкомнатной квартиры в доме 2025 года, на улице Минина ул. 6 в городе Минск

Опубликовано Apr 01, 2026 | Число просмотров: 11 | Номер: #334155

105,000$

или 98527 € или 342195 бел.руб.
Область:   Минская область
Город:   Минск
Улица:   Минина ул. 6
Тип аренды:   Квартиры
Комнат:   2
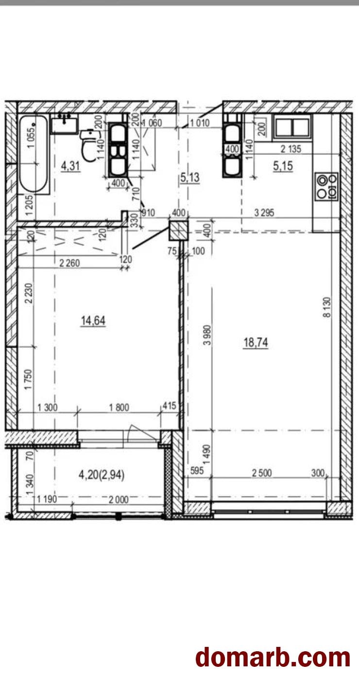
Общая площадь:   51.6
Жилая площадь:   39.60
Балкон:   Есть
Высота потолков:   2,5
Этаж:   14
Этажность дома:   21
Материал стен:   Блочный
Год постройки:   2025
Описание

Продается просторная 2х комнатная квартира в современном ЖК «Дубравинский»! Застройщик – Айрон!

Квартира располагается на комфортном 14 этаже 21 этажного дома! Большая кухня-гостиная, просторная спальня с выходом на широкую застеклённую лоджию. Качественная черновая отделка: стены оштукатурены, стяжка пола, разведена электрика с установкой розеток и выключателей, установлены радиаторы отопления, унитаз, счетчики воды и электроэнергии, двухкамерные стеклопакеты ПВХ, подведено оптоволокно. К

Дом – монолитный каркас, наружные стены выполнены из газосиликатного блока с утеплением (минеральная вата), внутренние стены - перегородки из блоков. В подъезде 3 бесшумных лифта Otis (2 пассажирских, 1 грузовой), пандус и подъёмник для маломобильных граждан, установлено видеонаблюдение. Ухоженная придомовая территория. Благоустроенный дом с детскими и спортивными площадками!

Отличное транспортное сообщение: остановка общественного транспорта, маршрутного такси - в шаговой доступности. Станции метро «Михалово» и «Петровщина» расположены в непосредственной близости от дома.

Все необходимое для комфортной жизни находится в пешей доступности: магазины, детские сады, школы, поликлиника, банки, фитнес-клуб, пункты выдачи WB и OZON, кафе и многое другое.

Это отличное место для комфортной жизни в Столице!

Область:   Минская область
Город:   Минск
Улица:   Минина ул. 6
Тип аренды:   Квартиры
Комнат:   2
Общая площадь:   51.6
Жилая площадь:   39.60
Балкон:   Есть
Высота потолков:   2,5
Этаж:   14
Этажность дома:   21
Материал стен:   Блочный
Год постройки:   2025
Удобства
  Вторичка без отделки   Блочный дом 2025 года
  С балконом (лоджией)   Без выделенного парковочного места
  Потолки 2,5 метра
Контактная информация
Контактное имя: Продавец
Телефон: +375339142828
Все объявления этого пользователя

Посмотреть на карте


Описание

Продается просторная 2х комнатная квартира в современном ЖК «Дубравинский»! Застройщик – Айрон!

Квартира располагается на комфортном 14 этаже 21 этажного дома! Большая кухня-гостиная, просторная спальня с выходом на широкую застеклённую лоджию. Качественная черновая отделка: стены оштукатурены, стяжка пола, разведена электрика с установкой розеток и выключателей, установлены радиаторы отопления, унитаз, счетчики воды и электроэнергии, двухкамерные стеклопакеты ПВХ, подведено оптоволокно. К

Дом – монолитный каркас, наружные стены выполнены из газосиликатного блока с утеплением (минеральная вата), внутренние стены - перегородки из блоков. В подъезде 3 бесшумных лифта Otis (2 пассажирских, 1 грузовой), пандус и подъёмник для маломобильных граждан, установлено видеонаблюдение. Ухоженная придомовая территория. Благоустроенный дом с детскими и спортивными площадками!

Отличное транспортное сообщение: остановка общественного транспорта, маршрутного такси - в шаговой доступности. Станции метро «Михалово» и «Петровщина» расположены в непосредственной близости от дома.

Все необходимое для комфортной жизни находится в пешей доступности: магазины, детские сады, школы, поликлиника, банки, фитнес-клуб, пункты выдачи WB и OZON, кафе и многое другое.

Это отличное место для комфортной жизни в Столице!

Вам может быть интересно