Аренда коммерческой недвижимости, на улице Школьная ул в городе Городище

Опубликовано Apr 01, 2026 | Число просмотров: 8 | Номер: #335020

10,705$

или 10045 € или 34887,6 бел.руб.
Область:   Брестская область
Город:   Городище
Улица:   Школьная ул
Тип аренды:   Коммерческая
Общая площадь:   1966
Состояние:   Вторичное
Тип объекта:   Промышленные помещения
Описание

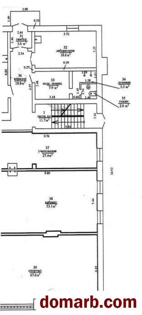
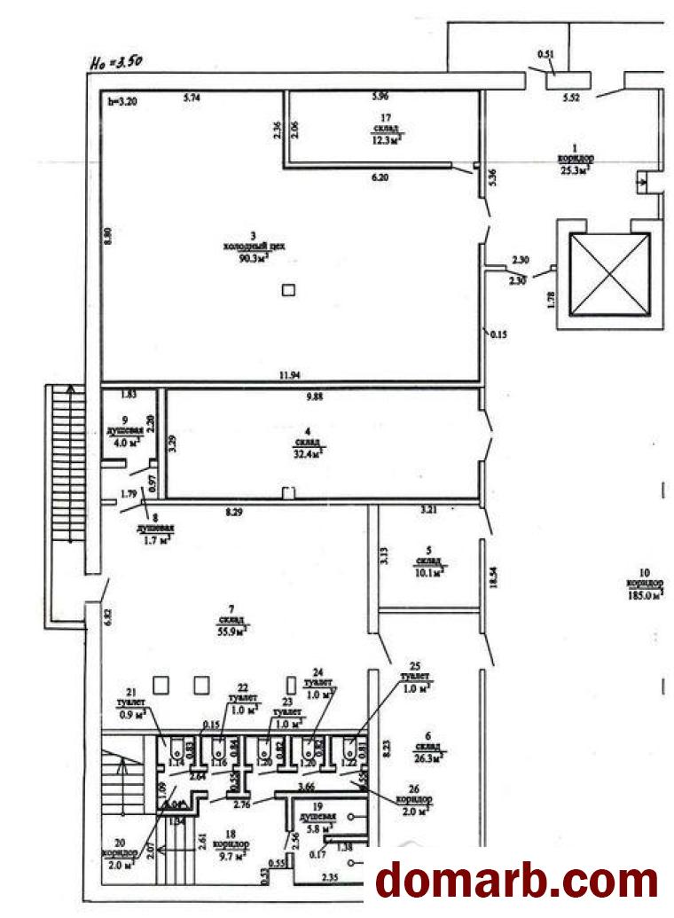
Сдаём в долгосрочную аренду здание (под производство или хранение). nп.ГородищеnЗдание находится неподалёку от Юхновки, Логойское направление, на территории бывшего пионерского лагеря, в настоящий момент туристический комплекс .nХорошие подъездные пути. Располагается среди леса, с дороги обзора здания нет. nВ здании есть подъемник, грузовой лифт. Территория вокруг столовой огорожена. nВ здании подключено электричество. Канализация.Вода перекрыта.nС учётом специфики здания, может разместиться производство пивоварения, фасовка, под хранение, мебельное производство, сборку.nООО "Агентство недвижимости ГермесГрупп». УНП 193776843. Лицензия Министерства Юстиции Республики Беларусь N 02240/487 от 07.08.2024 г.

Область:   Брестская область
Город:   Городище
Улица:   Школьная ул
Тип аренды:   Коммерческая
Общая площадь:   1966
Состояние:   Вторичное
Тип объекта:   Промышленные помещения
Контактная информация
Контактное имя: Продавец
Телефон: 375336968143
Все объявления этого пользователя

Посмотреть на карте


Описание

Сдаём в долгосрочную аренду здание (под производство или хранение). nп.ГородищеnЗдание находится неподалёку от Юхновки, Логойское направление, на территории бывшего пионерского лагеря, в настоящий момент туристический комплекс .nХорошие подъездные пути. Располагается среди леса, с дороги обзора здания нет. nВ здании есть подъемник, грузовой лифт. Территория вокруг столовой огорожена. nВ здании подключено электричество. Канализация.Вода перекрыта.nС учётом специфики здания, может разместиться производство пивоварения, фасовка, под хранение, мебельное производство, сборку.nООО "Агентство недвижимости ГермесГрупп». УНП 193776843. Лицензия Министерства Юстиции Республики Беларусь N 02240/487 от 07.08.2024 г.

Вам может быть интересно