Продажа четырехкомнатной квартиры в доме 2014 года, на улице Победителей просп. 131 в городе Минск

Опубликовано Apr 05, 2026 | Число просмотров: 1 | Номер: #336347

265,000$

или 248664 € или 863635 бел.руб.
Область:   Минская область
Город:   Минск
Улица:   Победителей просп. 131
Тип аренды:   Квартиры
Комнат:   4
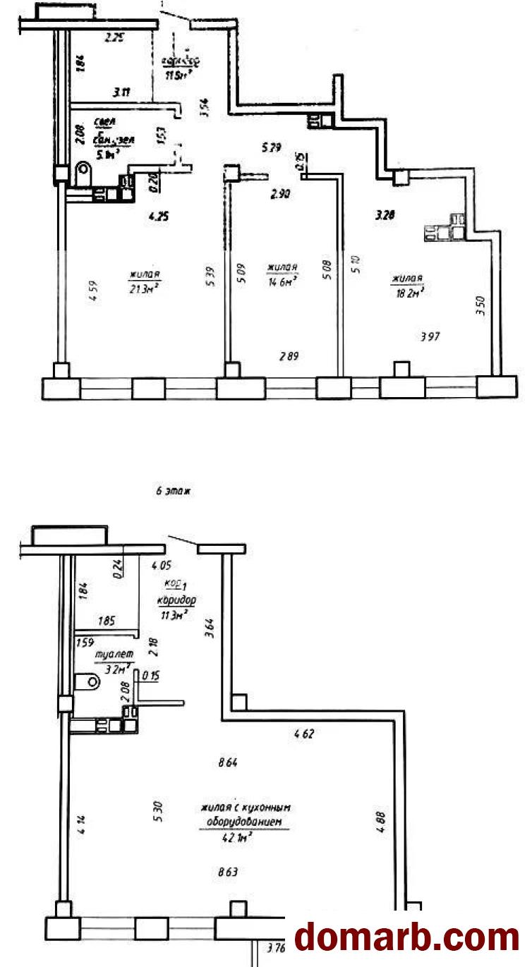
Общая площадь:   130.5
Жилая площадь:   96.20
Балкон:   Есть
Высота потолков:   2,7
Этаж:   6
Этажность дома:   7
Материал стен:   Блочный
Год постройки:   2014
Описание

Продается двухуровневая квартира в экологически чистом районе г. Минска, мкр-н «Лебяжий», пр-т Победителей, д. 131.

Два уровня 6-ой – 7-ой этажи, панорамный вид на водохранилище «Дрозды».

Общая площадь 130,5 просторная гостиная с кухней, три жилых комнаты, 2 санузла, гардеробные, лоджия. Окна на разные стороны дома.

Квартира полностью укомплектована и готова для проживания, продается с мебелью и техникой.

Рядом с домом находится парковый комплекс с водоемом "Дрозды", набережная для вечерних прогулок, велосипедная дорожка.

Вся необходимая инфраструктура в шаговой доступности: школы, детские сады, медицинские центры и поликлиники, фитнес-центры, салоны красоты, кафе, продовольственные магазины, банки, аптеки.

Удобное транспортное сообщение, выезд на МКАД и в центр города.

Приглашаем на просмотр в удобное для вас время!

Общая площадь указана по СНБ.

Лицензия: №02240/362 от 31.07.2018, Министерство юстиции РБ

Область:   Минская область
Город:   Минск
Улица:   Победителей просп. 131
Тип аренды:   Квартиры
Комнат:   4
Общая площадь:   130.5
Жилая площадь:   96.20
Балкон:   Есть
Высота потолков:   2,7
Этаж:   6
Этажность дома:   7
Материал стен:   Блочный
Год постройки:   2014
Удобства
  Вторичка с ремонтом   Блочный дом 2014 года
  С балконом (лоджией)   Без выделенного парковочного места
  Потолки 2,7 метра
Контактная информация
Контактное имя: Продавец
Телефон: +375291792794
Все объявления этого пользователя

Посмотреть на карте


Описание

Продается двухуровневая квартира в экологически чистом районе г. Минска, мкр-н «Лебяжий», пр-т Победителей, д. 131.

Два уровня 6-ой – 7-ой этажи, панорамный вид на водохранилище «Дрозды».

Общая площадь 130,5 просторная гостиная с кухней, три жилых комнаты, 2 санузла, гардеробные, лоджия. Окна на разные стороны дома.

Квартира полностью укомплектована и готова для проживания, продается с мебелью и техникой.

Рядом с домом находится парковый комплекс с водоемом "Дрозды", набережная для вечерних прогулок, велосипедная дорожка.

Вся необходимая инфраструктура в шаговой доступности: школы, детские сады, медицинские центры и поликлиники, фитнес-центры, салоны красоты, кафе, продовольственные магазины, банки, аптеки.

Удобное транспортное сообщение, выезд на МКАД и в центр города.

Приглашаем на просмотр в удобное для вас время!

Общая площадь указана по СНБ.

Лицензия: №02240/362 от 31.07.2018, Министерство юстиции РБ

Вам может быть интересно