Продажа трехкомнатной квартиры в доме 1975 года, на улице Сурганова ул. 40 в городе Минск

Опубликовано Apr 06, 2026 | Число просмотров: 8 | Номер: #337304

153,000$

или 143568 € или 498627 бел.руб.
Область:   Минская область
Город:   Минск
Улица:   Сурганова ул. 40
Тип аренды:   Квартиры
Комнат:   3
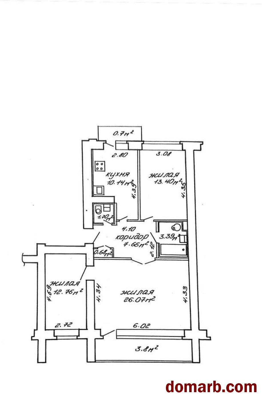
Общая площадь:   75.8
Жилая площадь:   52.20
Площадь кухни:   10.10
Балкон:   Есть
Высота потолков:   2,7
Этаж:   5
Этажность дома:   9
Материал стен:   Кирпичный
Год постройки:   1975
Описание

Предлагается уютная и просторная трёхкомнатная квартира в кирпичном доме, расположенная в самом сердце города на улице Сурганова. Этот отличный вариант для тех, кто ценит комфорт и удобство городского ритма.

Основные характеристики:

Расположение: 5 этаж из 9 Общая площадь: 75.8 Санузлы: два санузла для вашего удобства Балкон и лоджия: один балкон и одна лоджия — идеальны для отдыха и наслаждения свежим воздухом. Кухня: просторная кухня площадью 10.1 кв.м — место для уютных семейных ужинов и встреч с друзьями. Преимущества:

Кирпичный дом, обеспечивающий отличную тепло- и звукоизоляцию Развитая инфраструктура: рядом торговый центр "Рига", рестораны магазины, аптеки, банки и тд. Удобная транспортная доступность: до станции метро "Академия наук" всего 10 минут пешком или 2 остановки на общественном транспорте Это отличное предложение как для семей, так и для тех, кто ищет комфортную квартиру в центре города с развитой инфраструктурой.

Запишитесь на просмотр и станьте обладателем этого замечательного жилья!

Окажем профессиональную помощь в продаже Вашего объекта для приобретения данной квартиры!

Область:   Минская область
Город:   Минск
Улица:   Сурганова ул. 40
Тип аренды:   Квартиры
Комнат:   3
Общая площадь:   75.8
Жилая площадь:   52.20
Площадь кухни:   10.10
Балкон:   Есть
Высота потолков:   2,7
Этаж:   5
Этажность дома:   9
Материал стен:   Кирпичный
Год постройки:   1975
Удобства
  Вторичка с ремонтом   Кирпичный дом 1975 года
  С балконом (лоджией)   Без выделенного парковочного места
  Потолки 2,7 метра
Контактная информация
Контактное имя: Продавец
Телефон: +375296053283
Все объявления этого пользователя

Посмотреть на карте


Описание

Предлагается уютная и просторная трёхкомнатная квартира в кирпичном доме, расположенная в самом сердце города на улице Сурганова. Этот отличный вариант для тех, кто ценит комфорт и удобство городского ритма.

Основные характеристики:

Расположение: 5 этаж из 9 Общая площадь: 75.8 Санузлы: два санузла для вашего удобства Балкон и лоджия: один балкон и одна лоджия — идеальны для отдыха и наслаждения свежим воздухом. Кухня: просторная кухня площадью 10.1 кв.м — место для уютных семейных ужинов и встреч с друзьями. Преимущества:

Кирпичный дом, обеспечивающий отличную тепло- и звукоизоляцию Развитая инфраструктура: рядом торговый центр "Рига", рестораны магазины, аптеки, банки и тд. Удобная транспортная доступность: до станции метро "Академия наук" всего 10 минут пешком или 2 остановки на общественном транспорте Это отличное предложение как для семей, так и для тех, кто ищет комфортную квартиру в центре города с развитой инфраструктурой.

Запишитесь на просмотр и станьте обладателем этого замечательного жилья!

Окажем профессиональную помощь в продаже Вашего объекта для приобретения данной квартиры!

Вам может быть интересно