Продажа трехкомнатной квартиры в доме 2013 года, на улице Зеленая ул. 1к2 в городе Сеница

Опубликовано Apr 06, 2026 | Число просмотров: 1 | Номер: #337589

133,000$

или 124801 € или 433447 бел.руб.
Область:   Минская область
Город:   Сеница
Улица:   Зеленая ул. 1к2
Тип аренды:   Квартиры
Комнат:   3
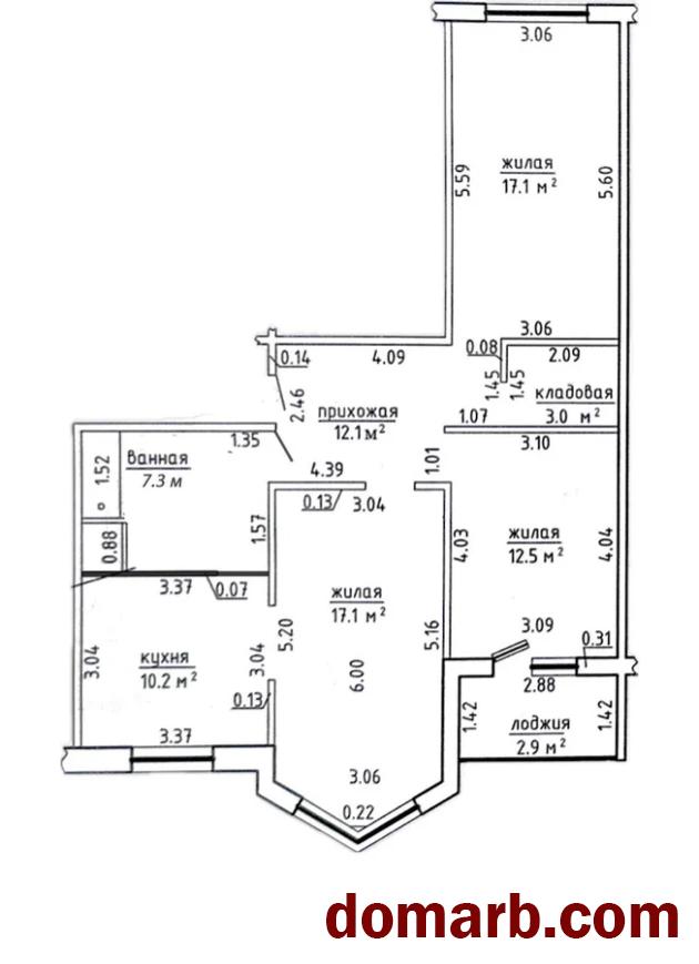
Общая площадь:   79.2
Жилая площадь:   46.70
Площадь кухни:   10.20
Балкон:   Есть
Высота потолков:   2,6
Этаж:   8
Этажность дома:   10
Материал стен:   Панельный
Год постройки:   2013
Описание

Продаётся просторная 3-комнатная квартира в современном жилом комплексе «Зелёные горки», аг. Сеница. Это один из самых близких и благоустроенных районов рядом с Минском, где сочетаются городская инфраструктура и чистый воздух, тишина, живописные виды и природные ландшафты. Рядом лесные массивы и река, что делает место экологически благополучным и привлекательным для вас.

-Здесь нет плотной старой застройки и перегруженных дворов, но при этом сохраняется полноценная связь со столицей. Дом с закрытой огороженной территорией и видеонаблюдением. Это безопасное пространство в котором есть детская и спортивная площадки, тротуары для прогулок, большая парковка, крытая стоянка для велосипедов и много удобств, которые недоступны или редко доступны в центре. Квартира располагается на комфортном 8 этаже 10 этажного дома.

Квартира светлая, тёплая и очень уютная — с продуманной планировкой и современной отделкой. Просторные комнаты и кухня не оставить Вас равнодушными! В квартире имеется все для комфортной жизни!

Район с отлично развитой инфраструктурой: рядом детский сад, школа, поликлиника, магазины, аптеки, спортивные объекты. В пешей доступности остановки общественного транспорта — автобусы и маршрутки до Минска и станции метро «Слуцкий гостинец». Удобный выезд на МКАД, поблизости — водоём и зоны отдыха.

Отличное место для комфортной жизни рядом с Мегаполисом!

Поможем продать Вашу недвижимость, для покупки этой квартиры.

Область:   Минская область
Город:   Сеница
Улица:   Зеленая ул. 1к2
Тип аренды:   Квартиры
Комнат:   3
Общая площадь:   79.2
Жилая площадь:   46.70
Площадь кухни:   10.20
Балкон:   Есть
Высота потолков:   2,6
Этаж:   8
Этажность дома:   10
Материал стен:   Панельный
Год постройки:   2013
Удобства
  Вторичка с ремонтом   Панельный дом 2013 года
  С балконом (лоджией)   Без выделенного парковочного места
  Потолки 2,6 метра
Контактная информация
Контактное имя: Продавец
Телефон: +375339142828
Все объявления этого пользователя

Посмотреть на карте


Описание

Продаётся просторная 3-комнатная квартира в современном жилом комплексе «Зелёные горки», аг. Сеница. Это один из самых близких и благоустроенных районов рядом с Минском, где сочетаются городская инфраструктура и чистый воздух, тишина, живописные виды и природные ландшафты. Рядом лесные массивы и река, что делает место экологически благополучным и привлекательным для вас.

-Здесь нет плотной старой застройки и перегруженных дворов, но при этом сохраняется полноценная связь со столицей. Дом с закрытой огороженной территорией и видеонаблюдением. Это безопасное пространство в котором есть детская и спортивная площадки, тротуары для прогулок, большая парковка, крытая стоянка для велосипедов и много удобств, которые недоступны или редко доступны в центре. Квартира располагается на комфортном 8 этаже 10 этажного дома.

Квартира светлая, тёплая и очень уютная — с продуманной планировкой и современной отделкой. Просторные комнаты и кухня не оставить Вас равнодушными! В квартире имеется все для комфортной жизни!

Район с отлично развитой инфраструктурой: рядом детский сад, школа, поликлиника, магазины, аптеки, спортивные объекты. В пешей доступности остановки общественного транспорта — автобусы и маршрутки до Минска и станции метро «Слуцкий гостинец». Удобный выезд на МКАД, поблизости — водоём и зоны отдыха.

Отличное место для комфортной жизни рядом с Мегаполисом!

Поможем продать Вашу недвижимость, для покупки этой квартиры.

Вам может быть интересно