Продажа трехкомнатной квартиры в доме 1998 года, на улице центральная 2 в городе Скоробогатовщина

Опубликовано Apr 06, 2026 | Число просмотров: 8 | Номер: #337628

30,000$

или 28151 € или 97770 бел.руб.
Область:   Минская область
Город:   Скоробогатовщина
Улица:   центральная
Дом:   2
Тип аренды:   Квартиры
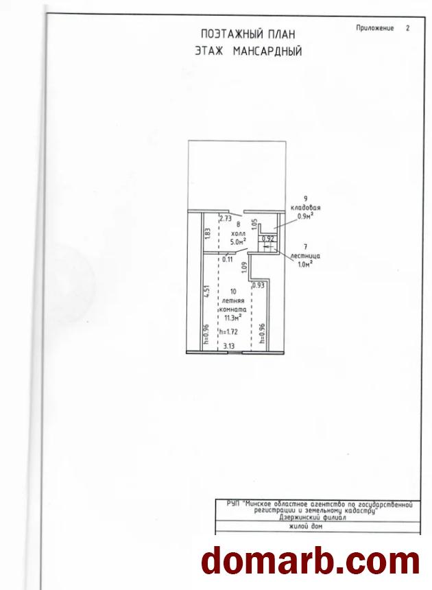
Комнат:   3
Общая площадь:   61
Жилая площадь:   25.00
Площадь кухни:   8.70
Балкон:   Нет
Этаж:   1
Этажность дома:   2
Материал стен:   Панельный
Год постройки:   1998
Описание

Уютный двухэтажный домик в деревне на участке 19,78 соток. Подойдет как любителям дачных поездок на природу, так и для круглогодичного проживания.

Удобная подъездная асфальтированная дорога обеспечивает лёгкий доступ к дому в любое время года, делая вашу жизнь ещё удобнее и практичнее.

-Установлено 2 трехфазных счетчика на электроснабжение (выделена мощность 5кВт обычный тариф) и электроотопление и горячее водоснабжение (выделена мощность 12кВт, тариф 0,0454р).

-Местная канализационная система

-Санузел оснащённый душевой кабинкой и удобным туалетом.

-Эффективная универсальная система отопления, представленная комбинированным котлом, работающим как на экологичном твёрдом топливе (дрова, брикет), так и на электричестве (введено в эксплуатацию). Такой выбор даёт возможность свободно регулировать расходы на обогрев зимой и создавать комфортные условия в доме независимо от времени года. Разведены полипропиленовые трубы водоснабжения и отопления. Алюминиевые радиаторы на первом этаже и электроконвектор на втором. Горячее водоснабжение регулируется бойлером.

Стены: бревна (жилая часть) и газосиликатные блоки (кухня, котельная и комната на втором этаже).

Крыша: шифер.

Пол первого этажа: бетонная стяжка, линолеум.

В блочной пристройке установлены окна и входная дверь ПВХ.

На ровном участке правильной формы есть сад, баня, теплица и блочная хозпостройка, еще много места для создания уюта и мест для досуга в кругу Вашей семьи.

Помощь с продажей не интересует.

Область:   Минская область
Город:   Скоробогатовщина
Улица:   центральная
Дом:   2
Тип аренды:   Квартиры
Комнат:   3
Общая площадь:   61
Жилая площадь:   25.00
Площадь кухни:   8.70
Балкон:   Нет
Этаж:   1
Этажность дома:   2
Материал стен:   Панельный
Год постройки:   1998
Удобства
  Вторичка с ремонтом   Панельный дом 1998 года
  Без балкона (лоджии)   С выделенным парковочным местом на улице
Контактная информация
Контактное имя: Продавец
Телефон: +375333296093
Все объявления этого пользователя

Посмотреть на карте


Описание

Уютный двухэтажный домик в деревне на участке 19,78 соток. Подойдет как любителям дачных поездок на природу, так и для круглогодичного проживания.

Удобная подъездная асфальтированная дорога обеспечивает лёгкий доступ к дому в любое время года, делая вашу жизнь ещё удобнее и практичнее.

-Установлено 2 трехфазных счетчика на электроснабжение (выделена мощность 5кВт обычный тариф) и электроотопление и горячее водоснабжение (выделена мощность 12кВт, тариф 0,0454р).

-Местная канализационная система

-Санузел оснащённый душевой кабинкой и удобным туалетом.

-Эффективная универсальная система отопления, представленная комбинированным котлом, работающим как на экологичном твёрдом топливе (дрова, брикет), так и на электричестве (введено в эксплуатацию). Такой выбор даёт возможность свободно регулировать расходы на обогрев зимой и создавать комфортные условия в доме независимо от времени года. Разведены полипропиленовые трубы водоснабжения и отопления. Алюминиевые радиаторы на первом этаже и электроконвектор на втором. Горячее водоснабжение регулируется бойлером.

Стены: бревна (жилая часть) и газосиликатные блоки (кухня, котельная и комната на втором этаже).

Крыша: шифер.

Пол первого этажа: бетонная стяжка, линолеум.

В блочной пристройке установлены окна и входная дверь ПВХ.

На ровном участке правильной формы есть сад, баня, теплица и блочная хозпостройка, еще много места для создания уюта и мест для досуга в кругу Вашей семьи.

Помощь с продажей не интересует.

Вам может быть интересно