Продажа четырехкомнатной квартиры в доме 2022 года, на улице Кропоткина ул. 59 в городе Минск

Опубликовано Apr 06, 2026 | Число просмотров: 8 | Номер: #337644

235,000$

или 220513 € или 765865 бел.руб.
Область:   Минская область
Город:   Минск
Улица:   Кропоткина ул. 59
Тип аренды:   Квартиры
Комнат:   4
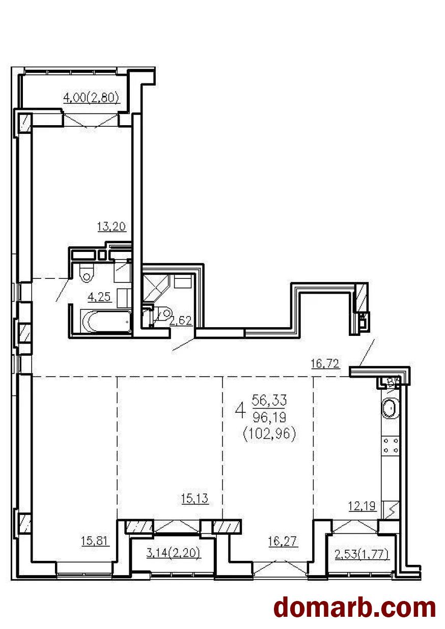
Общая площадь:   101.2
Жилая площадь:   88.20
Балкон:   Есть
Высота потолков:   3
Этаж:   11
Этажность дома:   15
Материал стен:   Блочный
Год постройки:   2022
Описание

Продается светлая, просторная 4-х комнатная квартира ( 101.2 кв.м. по СНБ) на 11 этаже в доме в жилом комплексе премиум-класса «Фарфоровый» в центре Минска.

ЖК «Фарфоровый»: современная комфортная безопасная жилая среда, пешеходный квартал с собственной инфраструктурой.

Уникальная стильная оригинальная архитектура: комплекс строится по индивидуальным проектам зданий, квартир, лобби, мест общего пользования, благоустройства территории, бульвара, выполненным известными архитекторами, градостроителями, дизайнерами.

Комплекс укомплектован собственным социальным пакетом: детский сад; СПА-центр; кафе; фитнес; встроенные помещения с услугами для жильцов комплекса (кофейня, салон красоты, косметология, стоматология, тренажерный зал и прочие); бизнес-центры; продуктовый магазин; 4 подземных паркинга общей вместимостью 760 машиномест, из которых обзорные лифты с панорамными видами поднимают прямо в квартиры и офисы; детские площадки для разных возрастов; благоустроенный бульвар внутри комплекса.

Комплекс расположен в престижном районе тихого центра столицы. В пешей доступности парк Победы, набережная реки Свислочь и Комсомольское озеро. Территория комплекса является безопасной и полностью свободна от транспортного движения и парковок автомобилей.

В квартире установлены импортные двухкамерные стеклопакеты REHAU с энергосберегающими и солнцезащитными стёклами. Алюминиевые витражи из профиля ALUTEX с высококачественной фурнитурой. Французские балконы, витражные стены и лоджии. Дизайнерские квартирные металлический двери с модной фурнитурой. Высокие потолки – 3 м. Многослойные стены и перекрытия обеспечат хорошую шумоизоляцию. Увеличенные оконные проёмы размером 1,8 х 1,7 метра (высота) с заниженным подоконником начинаются на уровне 70 см, имеют неоткрывающуюся нижнюю фрамугу высотой 40 см.

Вентилируемый фасад из крупноразмерных фиброцементных плит и керамогранита. Наличие подземного паркинга, из которого можно сразу подняться в квартиры. Фирменная приточно-вытяжная вентиляция Komfovent с рекуперацией тепла. В просторном холле подъезда, с индивидуальным дизайном, предусмотрены места для консьержей, санузел, зеркала. Техническое обеспечение дополнительных возможностей комфортного уровня обслуживания и безопасности (запас ТУ для зарядки электромобилей, возможность подключения систем видеонаблюдения и т.п.). Уникальные турецкие лифты HAS с обзорной стеной, через которую открывается панорама комплекса и всего города. На входе фейс-айди домофон. Эстетика и единый стиль прослеживается в каждой мелочи.

В квартире. Два раздельных санузла, 3 лоджии с остеклением. Выполнена предчистовая отделка: на полу стяжка, стены оштукатурены, разведена электрика, телевидение, домофон, противопожарная система, телефонная сеть, видеонаблюдение, вентиляция, установлены розетки и выключатели, в санузлах установлены унитазы, счетчики воды.

Лицензия: №02240/362 от 31.07.2018, Министерство юстиции РБ

Область:   Минская область
Город:   Минск
Улица:   Кропоткина ул. 59
Тип аренды:   Квартиры
Комнат:   4
Общая площадь:   101.2
Жилая площадь:   88.20
Балкон:   Есть
Высота потолков:   3
Этаж:   11
Этажность дома:   15
Материал стен:   Блочный
Год постройки:   2022
Удобства
  Вторичка без отделки   Блочный дом 2022 года
  С балконом (лоджией)   Без выделенного парковочного места
  Потолки 3 метра
Контактная информация
Контактное имя: Продавец
Телефон: +375296156840
Все объявления этого пользователя

Посмотреть на карте


Описание

Продается светлая, просторная 4-х комнатная квартира ( 101.2 кв.м. по СНБ) на 11 этаже в доме в жилом комплексе премиум-класса «Фарфоровый» в центре Минска.

ЖК «Фарфоровый»: современная комфортная безопасная жилая среда, пешеходный квартал с собственной инфраструктурой.

Уникальная стильная оригинальная архитектура: комплекс строится по индивидуальным проектам зданий, квартир, лобби, мест общего пользования, благоустройства территории, бульвара, выполненным известными архитекторами, градостроителями, дизайнерами.

Комплекс укомплектован собственным социальным пакетом: детский сад; СПА-центр; кафе; фитнес; встроенные помещения с услугами для жильцов комплекса (кофейня, салон красоты, косметология, стоматология, тренажерный зал и прочие); бизнес-центры; продуктовый магазин; 4 подземных паркинга общей вместимостью 760 машиномест, из которых обзорные лифты с панорамными видами поднимают прямо в квартиры и офисы; детские площадки для разных возрастов; благоустроенный бульвар внутри комплекса.

Комплекс расположен в престижном районе тихого центра столицы. В пешей доступности парк Победы, набережная реки Свислочь и Комсомольское озеро. Территория комплекса является безопасной и полностью свободна от транспортного движения и парковок автомобилей.

В квартире установлены импортные двухкамерные стеклопакеты REHAU с энергосберегающими и солнцезащитными стёклами. Алюминиевые витражи из профиля ALUTEX с высококачественной фурнитурой. Французские балконы, витражные стены и лоджии. Дизайнерские квартирные металлический двери с модной фурнитурой. Высокие потолки – 3 м. Многослойные стены и перекрытия обеспечат хорошую шумоизоляцию. Увеличенные оконные проёмы размером 1,8 х 1,7 метра (высота) с заниженным подоконником начинаются на уровне 70 см, имеют неоткрывающуюся нижнюю фрамугу высотой 40 см.

Вентилируемый фасад из крупноразмерных фиброцементных плит и керамогранита. Наличие подземного паркинга, из которого можно сразу подняться в квартиры. Фирменная приточно-вытяжная вентиляция Komfovent с рекуперацией тепла. В просторном холле подъезда, с индивидуальным дизайном, предусмотрены места для консьержей, санузел, зеркала. Техническое обеспечение дополнительных возможностей комфортного уровня обслуживания и безопасности (запас ТУ для зарядки электромобилей, возможность подключения систем видеонаблюдения и т.п.). Уникальные турецкие лифты HAS с обзорной стеной, через которую открывается панорама комплекса и всего города. На входе фейс-айди домофон. Эстетика и единый стиль прослеживается в каждой мелочи.

В квартире. Два раздельных санузла, 3 лоджии с остеклением. Выполнена предчистовая отделка: на полу стяжка, стены оштукатурены, разведена электрика, телевидение, домофон, противопожарная система, телефонная сеть, видеонаблюдение, вентиляция, установлены розетки и выключатели, в санузлах установлены унитазы, счетчики воды.

Лицензия: №02240/362 от 31.07.2018, Министерство юстиции РБ

Вам может быть интересно