Продажа четырехкомнатной квартиры в доме 1948 года, на улице Богдановича ул. 37 в городе Минск

Опубликовано Apr 06, 2026 | Число просмотров: 1 | Номер: #337715

370,000$

или 347191 € или 1205830 бел.руб.
Область:   Минская область
Город:   Минск
Улица:   Богдановича ул. 37
Тип аренды:   Квартиры
Комнат:   4
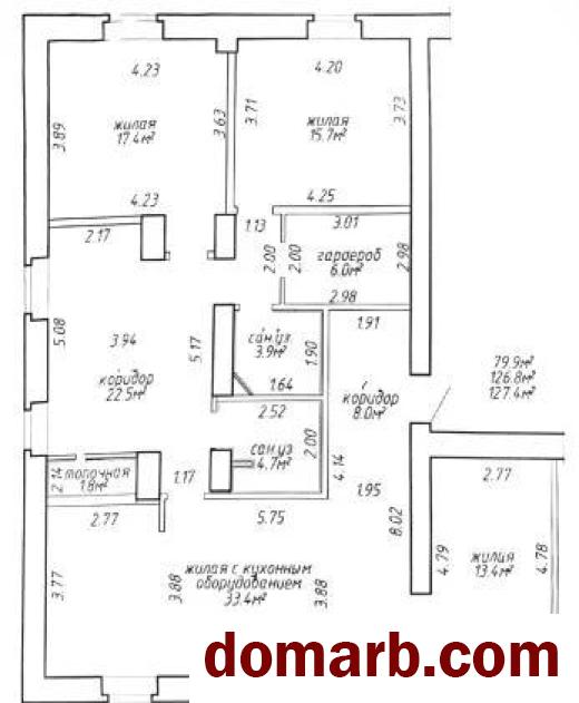
Общая площадь:   127.4
Жилая площадь:   79.90
Площадь кухни:   33.40
Балкон:   Есть
Высота потолков:   3
Этаж:   2
Этажность дома:   2
Материал стен:   Кирпичный
Год постройки:   1948
Описание

Представьте: вы просыпаетесь в тишине просторной квартиры с трехметровыми потолками, где утренний свет мягко скользит по отреставрированной кирпичной кладке стен 1948 года. За окном — исторический центр Минска, но внутри царит абсолютный покой и комфорт, обеспеченные современными инженерными решениями. Это не просто квартира, это частный мир, сочетающий благородную историю и технологии будущего.

Пространство для жизни и вдохновения

Вас встретит продуманный интерьер в стиле лофт с уникальными деталями: пол из массива ясеня и дуба толщиной 35 мм, дизайнерская подсветка балок, итальянские радиаторы. Четыре комнаты позволяют организовать идеальное пространство для семьи, работы и отдыха. Мягкая мебель PUFF с электрическими реклайнерами подарит moments истинного расслабления.

Технологии, заботящиеся о вас

Эта квартира «умна» по своей сути. Здесь всё продумано до мелочей:

· Идеальный воздух и вода: Современная приточно-вытяжная система с климат-контролем и 8-ступенчатая система очистки воды.

· Абсолютная тишина: Профессиональная шумоизоляция стен, пола, потолка и энергоэффективные трехкамерные стеклопакеты защитят от городского шума.

· Безопасность и комфорт: Охранная и пожарная сигнализация, видеонаблюдение за двором и подъездом, видеодомофон и индивидуальное газовое отопление.

· Кухня премиум-класса: Вся встроенная техника Bosch (включая стиральную машину с сушкой и отдельные холодильник с морозильником) и дизайнерская кухня делают готовку удовольствием.

Расположение со смыслом: в центре событий, вдали от шума

Жить в историческом сердце Минска — значит быть в эпицентре культуры. Ваш новый адрес — это:

· Прогулки к Большому театру, на набережную Свислочи, в уютные скверы и парки.

· Лучшие гимназии, детские сады и медицинские клиники в шаговой доступности для вашей семьи.

· Отличная транспортная доступность (метро, трамваи, троллейбусы) при этом дом расположен так, что шум машин вам не помешает.

· Собственная индивидуальная парковочная территория — редкое преимущество в центре города.

Это не просто покупка квартиры. Это выгодная инвестиция в уникальный актив и новый уровень жизни. Характер сталинского ампира в современном прочтении ждет своего ценителя.

ООО «ЭТАЖИ юнайтед»

УНП: 193673318

Договор 317/1 от 18.02.2026

Лицензия на оказание риэлтерских услуг №02240/460 МЮ РБ от 03.04.2023

Область:   Минская область
Город:   Минск
Улица:   Богдановича ул. 37
Тип аренды:   Квартиры
Комнат:   4
Общая площадь:   127.4
Жилая площадь:   79.90
Площадь кухни:   33.40
Балкон:   Есть
Высота потолков:   3
Этаж:   2
Этажность дома:   2
Материал стен:   Кирпичный
Год постройки:   1948
Удобства
  Вторичка с ремонтом   Кирпичный дом 1948 года
  С балконом (лоджией)   Без выделенного парковочного места
  Потолки 3 метра
Контактная информация
Контактное имя: Продавец
Телефон: +375445089759
Все объявления этого пользователя

Посмотреть на карте


Описание

Представьте: вы просыпаетесь в тишине просторной квартиры с трехметровыми потолками, где утренний свет мягко скользит по отреставрированной кирпичной кладке стен 1948 года. За окном — исторический центр Минска, но внутри царит абсолютный покой и комфорт, обеспеченные современными инженерными решениями. Это не просто квартира, это частный мир, сочетающий благородную историю и технологии будущего.

Пространство для жизни и вдохновения

Вас встретит продуманный интерьер в стиле лофт с уникальными деталями: пол из массива ясеня и дуба толщиной 35 мм, дизайнерская подсветка балок, итальянские радиаторы. Четыре комнаты позволяют организовать идеальное пространство для семьи, работы и отдыха. Мягкая мебель PUFF с электрическими реклайнерами подарит moments истинного расслабления.

Технологии, заботящиеся о вас

Эта квартира «умна» по своей сути. Здесь всё продумано до мелочей:

· Идеальный воздух и вода: Современная приточно-вытяжная система с климат-контролем и 8-ступенчатая система очистки воды.

· Абсолютная тишина: Профессиональная шумоизоляция стен, пола, потолка и энергоэффективные трехкамерные стеклопакеты защитят от городского шума.

· Безопасность и комфорт: Охранная и пожарная сигнализация, видеонаблюдение за двором и подъездом, видеодомофон и индивидуальное газовое отопление.

· Кухня премиум-класса: Вся встроенная техника Bosch (включая стиральную машину с сушкой и отдельные холодильник с морозильником) и дизайнерская кухня делают готовку удовольствием.

Расположение со смыслом: в центре событий, вдали от шума

Жить в историческом сердце Минска — значит быть в эпицентре культуры. Ваш новый адрес — это:

· Прогулки к Большому театру, на набережную Свислочи, в уютные скверы и парки.

· Лучшие гимназии, детские сады и медицинские клиники в шаговой доступности для вашей семьи.

· Отличная транспортная доступность (метро, трамваи, троллейбусы) при этом дом расположен так, что шум машин вам не помешает.

· Собственная индивидуальная парковочная территория — редкое преимущество в центре города.

Это не просто покупка квартиры. Это выгодная инвестиция в уникальный актив и новый уровень жизни. Характер сталинского ампира в современном прочтении ждет своего ценителя.

ООО «ЭТАЖИ юнайтед»

УНП: 193673318

Договор 317/1 от 18.02.2026

Лицензия на оказание риэлтерских услуг №02240/460 МЮ РБ от 03.04.2023

Вам может быть интересно