Продажа трехкомнатной квартиры , в городе Капустино

Опубликовано Apr 06, 2026 | Число просмотров: 8 | Номер: #338696

10,100$

или 9477 € или 32915,9 бел.руб.
Область:   Витебская область
Город:   Капустино
Тип аренды:   Квартиры
Комнат:   3
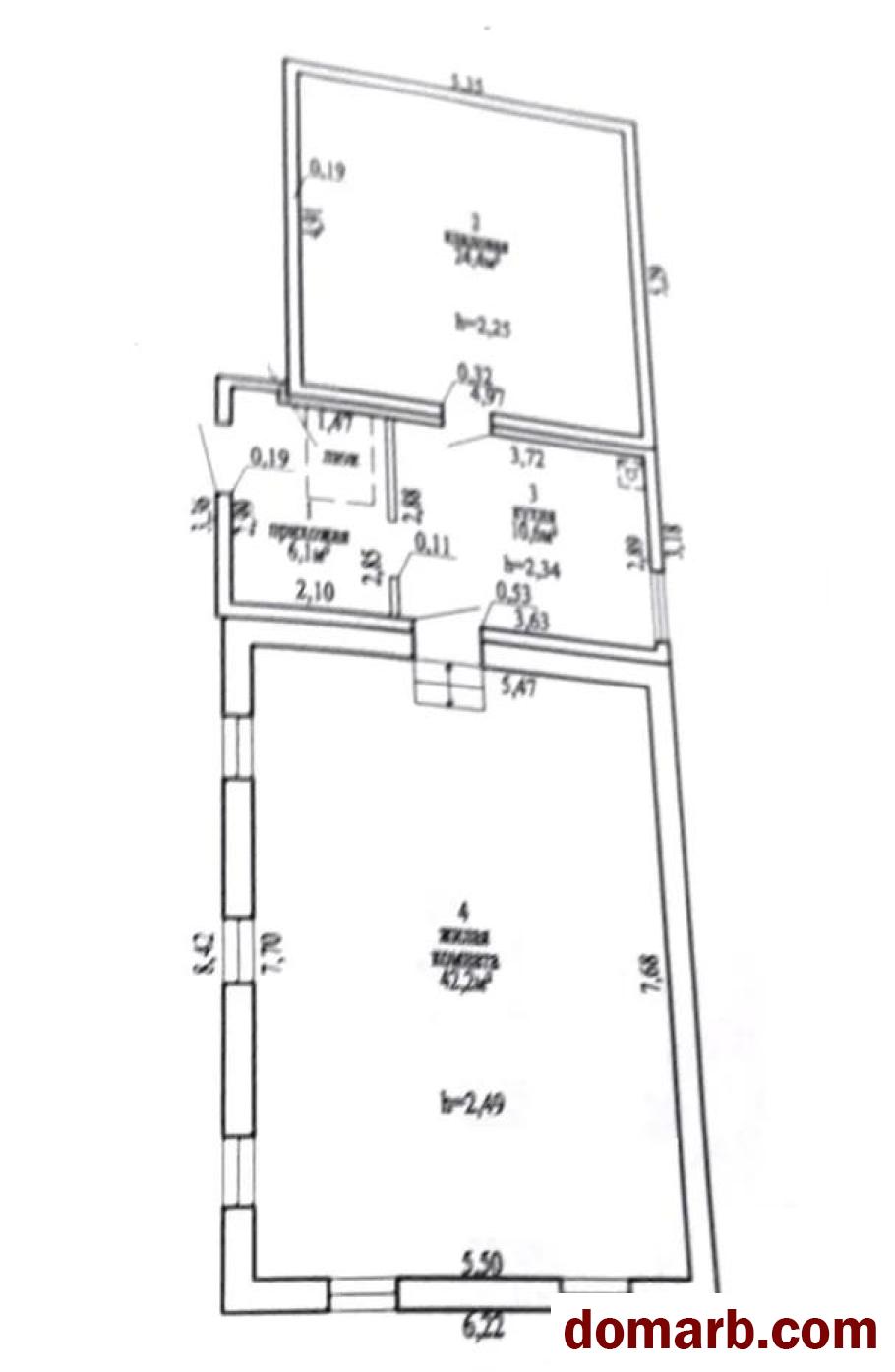
Общая площадь:   58.9
Жилая площадь:   50.00
Балкон:   Нет
Этаж:   1
Этажность дома:   1
Описание

Продается дом в д. Капустино Воложинского района, в 3 км от Воложина.

Дом в процессе капитального ремонта. Центральный водопровод и газ в доме, отопление - котел двухконтурный (Италия), новая стяжка пола, новая электропроводка, оптоволокно, видеонаблюдение. Окна стеклопакеты. Дом бревенчатый, пристройка из газосиликатных блоков.

Участок 18,45 соток в пожизненно наследуемом владении (ПНВ), огорожен. На участке колодец и хозпостройки.

Подъездный пути асфальт. Трасса М6 примыкает к деревне (500 м), до трассы М7 5 км.

Деревня находится в непосредственной близости от районного центра г. Воложин (3 км). Можно дойти пешком или подъехать на маршрутке и вся обширная инфраструктура районного центра полностью в Вашем распоряжении. 

Маршрутка Минск-Воложин останавливается в 500 м от дома.

В деревню приезжает магазин-автолавка.

Возможен обмен на  1-2 -х комнатную квартиру в Минске с доплатой.

Область:   Витебская область
Город:   Капустино
Тип аренды:   Квартиры
Комнат:   3
Общая площадь:   58.9
Жилая площадь:   50.00
Балкон:   Нет
Этаж:   1
Этажность дома:   1
Удобства
  Вторичка с ремонтом   Блочный дом
  Без балкона (лоджии)   С выделенным парковочным местом на улице
Контактная информация
Контактное имя: Продавец
Телефон: +375297636393
Все объявления этого пользователя

Посмотреть на карте


Описание

Продается дом в д. Капустино Воложинского района, в 3 км от Воложина.

Дом в процессе капитального ремонта. Центральный водопровод и газ в доме, отопление - котел двухконтурный (Италия), новая стяжка пола, новая электропроводка, оптоволокно, видеонаблюдение. Окна стеклопакеты. Дом бревенчатый, пристройка из газосиликатных блоков.

Участок 18,45 соток в пожизненно наследуемом владении (ПНВ), огорожен. На участке колодец и хозпостройки.

Подъездный пути асфальт. Трасса М6 примыкает к деревне (500 м), до трассы М7 5 км.

Деревня находится в непосредственной близости от районного центра г. Воложин (3 км). Можно дойти пешком или подъехать на маршрутке и вся обширная инфраструктура районного центра полностью в Вашем распоряжении. 

Маршрутка Минск-Воложин останавливается в 500 м от дома.

В деревню приезжает магазин-автолавка.

Возможен обмен на  1-2 -х комнатную квартиру в Минске с доплатой.

Вам может быть интересно