Продажа четырехкомнатной квартиры в доме 1989 года, на улице Минск Матусевича ул. в городе Беларусь

Опубликовано Apr 06, 2026 | Число просмотров: 1 | Номер: #338816

150,000$

или 140753 € или 488850 бел.руб.
Область:   Минская область
Город:   Беларусь
Улица:   Минск
Дом:   Матусевича ул.
Тип аренды:   Квартиры
Комнат:   4
Общая площадь:   82.3
Жилая площадь:   54.40
Площадь кухни:   7.10
Балкон:   Есть
Высота потолков:   2,6
Этаж:   8
Этажность дома:   9
Материал стен:   Панельный
Год постройки:   1989
Описание

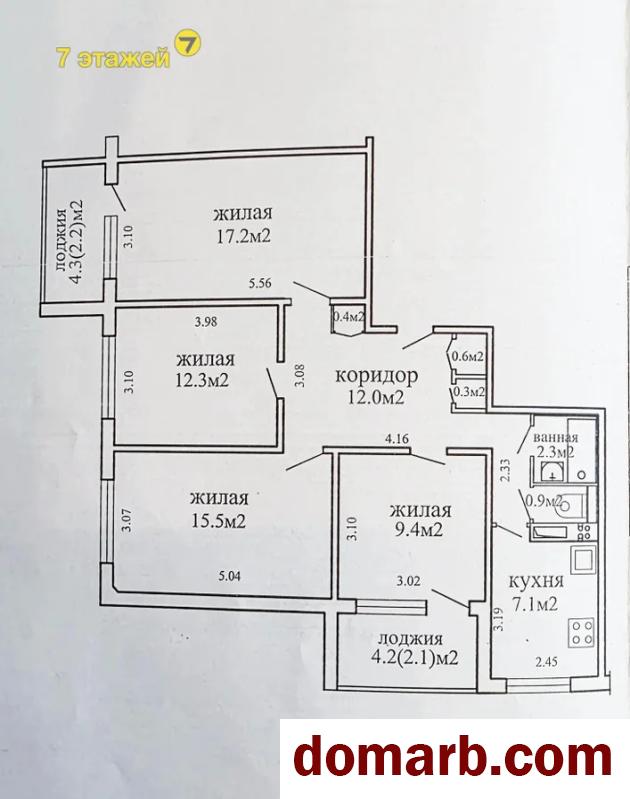
Просторная 4-комнатная квартира для комфортной жизни

ул. Матусевича, 65

Предлагается к продаже светлая и уютная 4-комнатная квартира с удобной планировкой. Отличный вариант для семьи, ценящей пространство, комфорт и развитую инфраструктуру.

Площадь квартиры:

общая — 78 м² (82,3 м² по СНБ)

жилая — 54,4 м²

кухня — 7,1 м²

Все комнаты изолированные, что обеспечивает комфорт и приватность для каждого члена семьи.

Преимущества квартиры:

- квартира в отличном состоянии

- полностью укомплектована мебелью и техникой

- 2 застеклённые лоджии

- раздельный санузел

- просторный тамбур на 2 квартиры

- комфортный 8 этаж

Развитая инфраструктура:

В шаговой доступности находятся школы, гимназия, детские сады, поликлиники, банки, магазины и торговые центры — всё необходимое для удобной и спокойной жизни.

Квартира полностью готова к проживанию без дополнительных вложений.

Приглашаем на просмотр — этот вариант стоит увидеть лично.

Поможем выгодно продать Вашу недвижимость для покупки этой!

Проконсультируем по кредитованию!

ООО "7 этажей", УНП 192361483, лицензия № 02240/283 от 14.11.2014г.

ООО "7 этажей", УНП 192361483, лицензия № 02240/283 от 14.11.2014г.

Область:   Минская область
Город:   Беларусь
Улица:   Минск
Дом:   Матусевича ул.
Тип аренды:   Квартиры
Комнат:   4
Общая площадь:   82.3
Жилая площадь:   54.40
Площадь кухни:   7.10
Балкон:   Есть
Высота потолков:   2,6
Этаж:   8
Этажность дома:   9
Материал стен:   Панельный
Год постройки:   1989
Удобства
  Вторичка с ремонтом   Панельный дом 1989 года
  С балконом (лоджией)   Без выделенного парковочного места
  Потолки 2,6 метра
Контактная информация
Контактное имя: Продавец
Телефон: +375297307070
Все объявления этого пользователя

Посмотреть на карте


Описание

Просторная 4-комнатная квартира для комфортной жизни

ул. Матусевича, 65

Предлагается к продаже светлая и уютная 4-комнатная квартира с удобной планировкой. Отличный вариант для семьи, ценящей пространство, комфорт и развитую инфраструктуру.

Площадь квартиры:

общая — 78 м² (82,3 м² по СНБ)

жилая — 54,4 м²

кухня — 7,1 м²

Все комнаты изолированные, что обеспечивает комфорт и приватность для каждого члена семьи.

Преимущества квартиры:

- квартира в отличном состоянии

- полностью укомплектована мебелью и техникой

- 2 застеклённые лоджии

- раздельный санузел

- просторный тамбур на 2 квартиры

- комфортный 8 этаж

Развитая инфраструктура:

В шаговой доступности находятся школы, гимназия, детские сады, поликлиники, банки, магазины и торговые центры — всё необходимое для удобной и спокойной жизни.

Квартира полностью готова к проживанию без дополнительных вложений.

Приглашаем на просмотр — этот вариант стоит увидеть лично.

Поможем выгодно продать Вашу недвижимость для покупки этой!

Проконсультируем по кредитованию!

ООО "7 этажей", УНП 192361483, лицензия № 02240/283 от 14.11.2014г.

ООО "7 этажей", УНП 192361483, лицензия № 02240/283 от 14.11.2014г.

Вам может быть интересно