Продажа трехкомнатной квартиры в доме 1933 года, на улице Кабушкина пер. 17 в городе Минск

Опубликовано Apr 06, 2026 | Число просмотров: 9 | Номер: #339361

109,990$

или 103210 € или 358457,41 бел.руб.
Область:   Минская область
Город:   Минск
Улица:   Кабушкина пер. 17
Тип аренды:   Квартиры
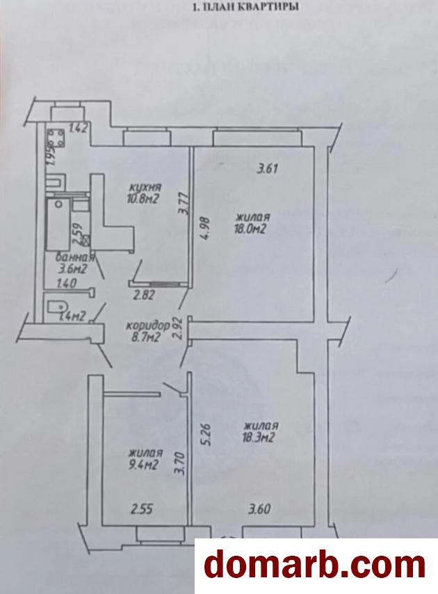
Комнат:   3
Общая площадь:   71.2
Жилая площадь:   45.70
Площадь кухни:   10.80
Балкон:   Есть
Этаж:   2
Этажность дома:   4
Материал стен:   Кирпичный
Год постройки:   1933
Описание

Продается просторная трехкомнатная квартира под ремонт в историческом кирпичном доме 1933 года постройки — единственном в Минске, сохранившем оригинальный краснокирпичный фасад и архитектурную целостность эпохи.

Дом возведен для офицерского состава Красной Армии в микрорайоне «Красное Урочище» и представляет собой редкое сочетание конструктивизма и сталинского ампира.

Высота потолков — 3 метра.

Квартира расположена на 2-м этаже 4-этажного дома со скатной крышей.

Без лифта.

Особенности:

— В подъезде всего 8 квартир (по 2 на этаж), 3 подъезда в доме — минимум соседей, максимум приватности.

— Окна выходят на две стороны двора: виды на зеленый частный сектор, берёзовую рощу на территории и открытое небо — никаких «глухих» стен.

— Придомовая парковка для жильцов.

— Тишина, историческая атмосфера и ощущение жизни в старом Минске — при этом в 250 метрах от станции метро «Автозаводская».

Идеальный вариант для тех, кто ценит историю, пространство, свет и уникальную архитектуру. Возможность создать авторский интерьер в одном из самых редких домов столицы.

Поможем выгодно продать вашу недвижимость для покупки данного объекта.

Бесплатно проконсультируем, окажем профессиональную помощь в сложных вопросах с недвижимостью, обеспечим юридическое сопровождение сделки и безопасность взаиморасчетов.

Частное унитарное предприятие «Дианэст», УНП 190124316, лицензия №02240/54 от 06.06.2005. Договор №12/4 от 26.01.2026

Область:   Минская область
Город:   Минск
Улица:   Кабушкина пер. 17
Тип аренды:   Квартиры
Комнат:   3
Общая площадь:   71.2
Жилая площадь:   45.70
Площадь кухни:   10.80
Балкон:   Есть
Этаж:   2
Этажность дома:   4
Материал стен:   Кирпичный
Год постройки:   1933
Удобства
  Вторичка с ремонтом   Кирпичный дом 1933 года
  С балконом (лоджией)   Без выделенного парковочного места
Контактная информация
Контактное имя: Продавец
Телефон: +375293106220
Все объявления этого пользователя

Посмотреть на карте


Описание

Продается просторная трехкомнатная квартира под ремонт в историческом кирпичном доме 1933 года постройки — единственном в Минске, сохранившем оригинальный краснокирпичный фасад и архитектурную целостность эпохи.

Дом возведен для офицерского состава Красной Армии в микрорайоне «Красное Урочище» и представляет собой редкое сочетание конструктивизма и сталинского ампира.

Высота потолков — 3 метра.

Квартира расположена на 2-м этаже 4-этажного дома со скатной крышей.

Без лифта.

Особенности:

— В подъезде всего 8 квартир (по 2 на этаж), 3 подъезда в доме — минимум соседей, максимум приватности.

— Окна выходят на две стороны двора: виды на зеленый частный сектор, берёзовую рощу на территории и открытое небо — никаких «глухих» стен.

— Придомовая парковка для жильцов.

— Тишина, историческая атмосфера и ощущение жизни в старом Минске — при этом в 250 метрах от станции метро «Автозаводская».

Идеальный вариант для тех, кто ценит историю, пространство, свет и уникальную архитектуру. Возможность создать авторский интерьер в одном из самых редких домов столицы.

Поможем выгодно продать вашу недвижимость для покупки данного объекта.

Бесплатно проконсультируем, окажем профессиональную помощь в сложных вопросах с недвижимостью, обеспечим юридическое сопровождение сделки и безопасность взаиморасчетов.

Частное унитарное предприятие «Дианэст», УНП 190124316, лицензия №02240/54 от 06.06.2005. Договор №12/4 от 26.01.2026

Вам может быть интересно