Продажа четырехкомнатной квартиры в доме 2013 года, на улице Шабловского в городе Минск

Опубликовано Apr 07, 2026 | Число просмотров: 2 | Номер: #340391

145,000$

или 136061 € или 472555 бел.руб.
Область:   Минская область
Город:   Минск
Улица:   Шабловского
Тип аренды:   Квартиры
Комнат:   4
Общая площадь:   102
Жилая площадь:   68.00
Балкон:   Есть
Высота потолков:   3,5
Этаж:   1
Этажность дома:   2
Материал стен:   Блочный
Год постройки:   2013
Описание

Продаем современную квартиру с новым ремонтом и техникой в 20 минутах езды от ЖД вокзала!

Важно! в зоне сохранения усадебной застройки по ген. плану!

Если вы устали каждый вечер искать парковочное место возле дома, раздражают шумные соседи вокруг, отключение горячей воды, то наше предложение точно для вас!

Продаем свою квартиру в двухквартирном доме со своим шикарным участком, парковочным местом, террасой, зоной барбекю, хоз. блоком.

Коммуникации: вода - центральная, эл-во - 220В, газ - центральный, канализация - центральная.

Вся мебель и техника входит в стоимость!

А сейчас обо всем подробнее.

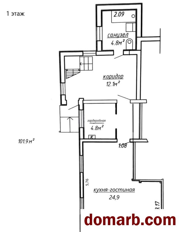
Современная планировка дома общей площадью 101.9 кв.м.:

1 этаж:

- сердце дома, где мы всей семьей проводим больше всего времени - большая и уютная кухня-гостиная площадью 24,9 кв.м. со всей необходимой техникой и мебелью (телевизор TCL, холодильник Liebherr, большая посудомойка, духовой шкаф и варочная панель Zorg, 2 дивана, качели, раскладной стол для приема около 10 гостей и кухня из Pinterest);

- вместительная гардеробная 4,8 кв.м. с постирочной со стиральной машиной AEG и сушильной машиной AEG (оригинальные, приехали из Германии), столик для макияжа/рабочее место;

- просторный сан. узел 4,8 кв.м. с новой сантехникой, душевой кабиной - полноценной ванной 170 см;

- прихожая 12 кв.м. с большим кол-вом зон хранения, зеркалом в полный рост и лестницей на второй этаж;

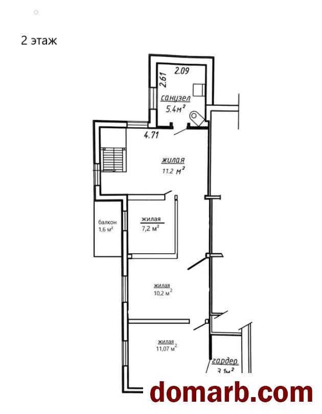
2 этаж

- уютная спальня 9,2 кв.м. с выходом на балкон где можно пить кофе и любоваться цветущими вишнями;

- милая детская комната 10,2 кв.м.

- солнечная родительская спальня с своей вместительной гардеробной 15 кв.м.

- сан. узел 5,4 кв.м. с большим шкафом

Идеально организовано пространство всего дома, где задействован каждый квадратный метр максимально функционально!

Во дворе 2 парковочных места, с комфортным заездом, идеально под электромобили, т.к. есть возможность заряжать авто прям во дворе своего дома.

Садовые качели в тени больших деревьев и цветов.

За домом, абсолютно уединенный участок, спрятанный от глаз прохожих, на котором расположена терраса для отдыха и приема гостей с зоной барбекю, винный погреб, хоз. блок около 20 кв. м., со стеллажами до потолка, в котором можно хранить просто все: велосипеды, детские игрушки, инструменты, сезонные шины и многое другое.

Коммуникации центральные: электричество, газовое отопление, водопровод, канализация, оптоволокно. Дом полностью реконструирован в 2013 году, от прежней застройки 1962 года осталось только 2 стены из бруса.

1 этаж и санузел 2 этажа построен из газосиликатного блока с утеплением пенопластом 10 см., второй этаж построен по каркасной технологии. Дом обшит металлическим сайдингом. Крыша покрыта металлопрофилем, выполнено утепление и противопожарная защита.

Ремонт 2023 года с заменой всех окон и дверей, новой электро проводки и тд. На стенках стеклообои с последующей окраской, потолки- натяжные, дорогие тканевые, на полу линолеум и керамическая плитка.

Дом теплый, с экономичным итальянским газовым котлом и интеллектуальной системой управления, обслуживается ежегодно по нормативам Мингаза. Дешевая коммуналка - отопление с подогревом воды в среднем по году около 40 руб, всего с водой и электричеством около 145 руб.

Вокруг высажено более 35 кустарников и деревьев (туи, ивы, голубика, жимолость, лимонник, лаванда) + есть высокие грядки. Растения все взрослые, прижились и не требуют особого ухода. Особый вайб утром выйти на участок, чтобы собрать ягоды и зелень к завтраку).

Отличная транспортная доступность (ст.м. Неморшанский сад, троллейбусы, автобусы, маршрутки). До ЖД вокзала 15 минут езды на транспорте.

Вся инфраструктура: 3 детских сада в шаговой доступности, школа, магазины, почта, банк и наш любимый парк с озером в Солнечной долине.

Вы можете прекрасно проводить время у себя на участке жарив шашлыки, а уже через 20 минут гулять на Зыбицкой).

Супер тихий, спокойный, безопасный и малонаселенный жилой район, по ген. плану в зоне сохранения усадебной застройки.

Участок с нашими соседями (пожилая пара) поделен и огражден забором, мы с ними никак не пересекаемся, полная приватность.

Чистая продажа от нас, собственников-белорусов. Прозрачная история владения квартирой, мы третьи собственники, без наследства и прочих обременений.

Продаем дом в связи с переездом в сталинку в центре города.

Приезжайте увидеть сами комфортный и эксклюзивный вариант для жизни!

Больше фото-видео в инсте @dom_iz_pinterest.minsk

Область:   Минская область
Город:   Минск
Улица:   Шабловского
Тип аренды:   Квартиры
Комнат:   4
Общая площадь:   102
Жилая площадь:   68.00
Балкон:   Есть
Высота потолков:   3,5
Этаж:   1
Этажность дома:   2
Материал стен:   Блочный
Год постройки:   2013
Удобства
  Вторичка с ремонтом   Блочный дом 2013 года
  С балконом (лоджией)   С выделенным парковочным местом на улице
  Потолки 3,5 метра
Контактная информация
Контактное имя: Продавец
Телефон: +375293174041
Все объявления этого пользователя

Посмотреть на карте


Описание

Продаем современную квартиру с новым ремонтом и техникой в 20 минутах езды от ЖД вокзала!

Важно! в зоне сохранения усадебной застройки по ген. плану!

Если вы устали каждый вечер искать парковочное место возле дома, раздражают шумные соседи вокруг, отключение горячей воды, то наше предложение точно для вас!

Продаем свою квартиру в двухквартирном доме со своим шикарным участком, парковочным местом, террасой, зоной барбекю, хоз. блоком.

Коммуникации: вода - центральная, эл-во - 220В, газ - центральный, канализация - центральная.

Вся мебель и техника входит в стоимость!

А сейчас обо всем подробнее.

Современная планировка дома общей площадью 101.9 кв.м.:

1 этаж:

- сердце дома, где мы всей семьей проводим больше всего времени - большая и уютная кухня-гостиная площадью 24,9 кв.м. со всей необходимой техникой и мебелью (телевизор TCL, холодильник Liebherr, большая посудомойка, духовой шкаф и варочная панель Zorg, 2 дивана, качели, раскладной стол для приема около 10 гостей и кухня из Pinterest);

- вместительная гардеробная 4,8 кв.м. с постирочной со стиральной машиной AEG и сушильной машиной AEG (оригинальные, приехали из Германии), столик для макияжа/рабочее место;

- просторный сан. узел 4,8 кв.м. с новой сантехникой, душевой кабиной - полноценной ванной 170 см;

- прихожая 12 кв.м. с большим кол-вом зон хранения, зеркалом в полный рост и лестницей на второй этаж;

2 этаж

- уютная спальня 9,2 кв.м. с выходом на балкон где можно пить кофе и любоваться цветущими вишнями;

- милая детская комната 10,2 кв.м.

- солнечная родительская спальня с своей вместительной гардеробной 15 кв.м.

- сан. узел 5,4 кв.м. с большим шкафом

Идеально организовано пространство всего дома, где задействован каждый квадратный метр максимально функционально!

Во дворе 2 парковочных места, с комфортным заездом, идеально под электромобили, т.к. есть возможность заряжать авто прям во дворе своего дома.

Садовые качели в тени больших деревьев и цветов.

За домом, абсолютно уединенный участок, спрятанный от глаз прохожих, на котором расположена терраса для отдыха и приема гостей с зоной барбекю, винный погреб, хоз. блок около 20 кв. м., со стеллажами до потолка, в котором можно хранить просто все: велосипеды, детские игрушки, инструменты, сезонные шины и многое другое.

Коммуникации центральные: электричество, газовое отопление, водопровод, канализация, оптоволокно. Дом полностью реконструирован в 2013 году, от прежней застройки 1962 года осталось только 2 стены из бруса.

1 этаж и санузел 2 этажа построен из газосиликатного блока с утеплением пенопластом 10 см., второй этаж построен по каркасной технологии. Дом обшит металлическим сайдингом. Крыша покрыта металлопрофилем, выполнено утепление и противопожарная защита.

Ремонт 2023 года с заменой всех окон и дверей, новой электро проводки и тд. На стенках стеклообои с последующей окраской, потолки- натяжные, дорогие тканевые, на полу линолеум и керамическая плитка.

Дом теплый, с экономичным итальянским газовым котлом и интеллектуальной системой управления, обслуживается ежегодно по нормативам Мингаза. Дешевая коммуналка - отопление с подогревом воды в среднем по году около 40 руб, всего с водой и электричеством около 145 руб.

Вокруг высажено более 35 кустарников и деревьев (туи, ивы, голубика, жимолость, лимонник, лаванда) + есть высокие грядки. Растения все взрослые, прижились и не требуют особого ухода. Особый вайб утром выйти на участок, чтобы собрать ягоды и зелень к завтраку).

Отличная транспортная доступность (ст.м. Неморшанский сад, троллейбусы, автобусы, маршрутки). До ЖД вокзала 15 минут езды на транспорте.

Вся инфраструктура: 3 детских сада в шаговой доступности, школа, магазины, почта, банк и наш любимый парк с озером в Солнечной долине.

Вы можете прекрасно проводить время у себя на участке жарив шашлыки, а уже через 20 минут гулять на Зыбицкой).

Супер тихий, спокойный, безопасный и малонаселенный жилой район, по ген. плану в зоне сохранения усадебной застройки.

Участок с нашими соседями (пожилая пара) поделен и огражден забором, мы с ними никак не пересекаемся, полная приватность.

Чистая продажа от нас, собственников-белорусов. Прозрачная история владения квартирой, мы третьи собственники, без наследства и прочих обременений.

Продаем дом в связи с переездом в сталинку в центре города.

Приезжайте увидеть сами комфортный и эксклюзивный вариант для жизни!

Больше фото-видео в инсте @dom_iz_pinterest.minsk

Вам может быть интересно