Продажа трехкомнатной квартиры в доме 2014 года, на улице Березовая роща ул. 106 в городе Боровляны

Опубликовано Apr 07, 2026 | Число просмотров: 11 | Номер: #340718

177,000$

или 166089 € или 576843 бел.руб.
Область:   Витебская область
Город:   Боровляны
Улица:   Березовая роща ул. 106
Тип аренды:   Квартиры
Комнат:   3
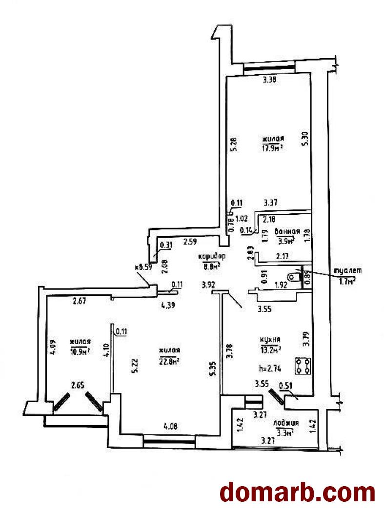
Общая площадь:   82.5
Жилая площадь:   51.60
Площадь кухни:   13.00
Балкон:   Есть
Высота потолков:   2,7
Этаж:   4
Этажность дома:   4
Материал стен:   Блочный
Год постройки:   2014
Описание

Предлагаем к покупке 3х комнатную квартиру в каркасно-блочном доме малоэтажной постройки. Дом повышенной комфортности с видеонаблюдением. Въезд на дворовую территорию через шлагбаум, имеется охраняемая велопарковка.

Стильная квартира в классическом жанре. Светлые тона, природные материалы и теплые оттенки создают спокойную, «дышащую» атмосферу, которая будет актуальна долгие годы. А, высокие потолки добавляют пространства.

Тепло и шумоизоляция на хорошем уровне, при этом отсутствие соседей сверху избавляет от любых посторонних звуков. Окна на две стороны, что говорит о присутствии света в течении дня.

Квартира полностью укомплектована всем необходимым: от мебели до бытовой техники. 2 отдельные спальни, просторная гостевая, роскошный санузел, утепленная лоджия и шикарная, большая кухня - это все, что нужно для комфорта.

Вам остается только сделать правильный выбор, и позвонить риэлтеру

Площадь указаан по СНБ.

Лицензия: 02240/446 от 11.07.2022, Министерство юстиции РБ

Область:   Витебская область
Город:   Боровляны
Улица:   Березовая роща ул. 106
Тип аренды:   Квартиры
Комнат:   3
Общая площадь:   82.5
Жилая площадь:   51.60
Площадь кухни:   13.00
Балкон:   Есть
Высота потолков:   2,7
Этаж:   4
Этажность дома:   4
Материал стен:   Блочный
Год постройки:   2014
Удобства
  Вторичка с ремонтом   Блочный дом 2014 года
  С балконом (лоджией)   Без выделенного парковочного места
  Потолки 2,7 метра
Контактная информация
Контактное имя: Продавец
Телефон: +375291373533
Все объявления этого пользователя

Посмотреть на карте


Описание

Предлагаем к покупке 3х комнатную квартиру в каркасно-блочном доме малоэтажной постройки. Дом повышенной комфортности с видеонаблюдением. Въезд на дворовую территорию через шлагбаум, имеется охраняемая велопарковка.

Стильная квартира в классическом жанре. Светлые тона, природные материалы и теплые оттенки создают спокойную, «дышащую» атмосферу, которая будет актуальна долгие годы. А, высокие потолки добавляют пространства.

Тепло и шумоизоляция на хорошем уровне, при этом отсутствие соседей сверху избавляет от любых посторонних звуков. Окна на две стороны, что говорит о присутствии света в течении дня.

Квартира полностью укомплектована всем необходимым: от мебели до бытовой техники. 2 отдельные спальни, просторная гостевая, роскошный санузел, утепленная лоджия и шикарная, большая кухня - это все, что нужно для комфорта.

Вам остается только сделать правильный выбор, и позвонить риэлтеру

Площадь указаан по СНБ.

Лицензия: 02240/446 от 11.07.2022, Министерство юстиции РБ

Вам может быть интересно