Продажа трехкомнатной квартиры в доме 1965 года, в городе Чурилово

Опубликовано Apr 09, 2026 | Число просмотров: 4 | Номер: #342171

12,500$

или 11729 € или 40737,5 бел.руб.
Область:   Витебская область
Город:   Чурилово
Тип аренды:   Квартиры
Комнат:   3
Общая площадь:   69.5
Жилая площадь:   46.20
Площадь кухни:   8.50
Балкон:   Нет
Этаж:   1
Этажность дома:   1
Материал стен:   Кирпичный
Год постройки:   1965
Описание

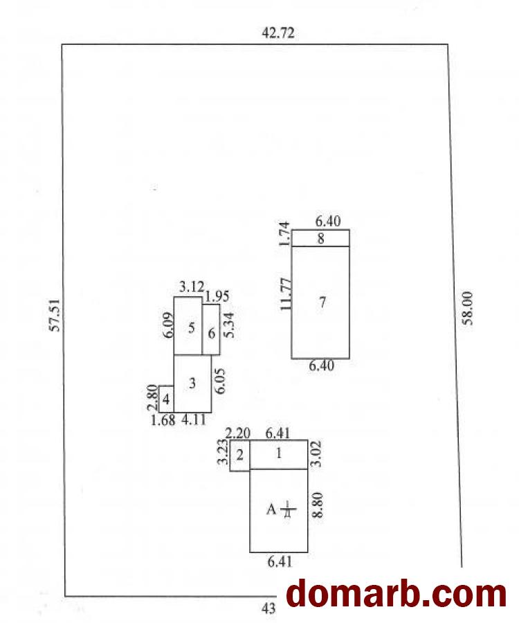
Жилой дом из бруса, покрашенного снаружи размером 6,4 на 8,8 м на бутовом фундаменте с дощатой пристройкой 26 кв.м. (кладовой, прихожей и верандой). В доме 3 комнаты, отапливаемые печкой "групкой" и русской печью-лежанкой.

Полы, потолки, окна и двери в доме деревянные окрашенные, в нормальном состоянии. Стены оклеены обоями, состояние комнат хорошее. Участок приватизирован, ровный, прямоугольный, расположен на окраине деревни с садом и огородом. Хозяйственные постройки не ветхие в нормальном состоянии, в одном из сараев можно обустроить баню, остальные пригодны для содержания животных.

По улице проходит центральный газопровод, в дом не заведен, колодец с чистой водой, общий, расположен недалеко от дома возле соседей на улице. Дорога асфальтирована, до Минска 50 км от МКАД. Хорошее транспортное сообщение - маршрутки каждые полчаса по заявке отвозят в Минск и обратно. До г.Узда 7 км, также часто ходит транспорт.

Деревня большая, имеет общую баню, магазин, ФАП, живописнейшее и тихое место, возле деревни протекает река Уздянка, находится хвойный и смешанный лес, охотничьи угодья, грибные и ягодные места, недалеко возле леса расположено зарыбленное озеро. Идеальное место для жизни, отдыха и общения с природой.

Область:   Витебская область
Город:   Чурилово
Тип аренды:   Квартиры
Комнат:   3
Общая площадь:   69.5
Жилая площадь:   46.20
Площадь кухни:   8.50
Балкон:   Нет
Этаж:   1
Этажность дома:   1
Материал стен:   Кирпичный
Год постройки:   1965
Удобства
  Вторичка с ремонтом   Кирпичный дом 1965 года
  Без балкона (лоджии)   Без выделенного парковочного места
Контактная информация
Контактное имя: Продавец
Телефон: +375296840202
Все объявления этого пользователя

Посмотреть на карте


Описание

Жилой дом из бруса, покрашенного снаружи размером 6,4 на 8,8 м на бутовом фундаменте с дощатой пристройкой 26 кв.м. (кладовой, прихожей и верандой). В доме 3 комнаты, отапливаемые печкой "групкой" и русской печью-лежанкой.

Полы, потолки, окна и двери в доме деревянные окрашенные, в нормальном состоянии. Стены оклеены обоями, состояние комнат хорошее. Участок приватизирован, ровный, прямоугольный, расположен на окраине деревни с садом и огородом. Хозяйственные постройки не ветхие в нормальном состоянии, в одном из сараев можно обустроить баню, остальные пригодны для содержания животных.

По улице проходит центральный газопровод, в дом не заведен, колодец с чистой водой, общий, расположен недалеко от дома возле соседей на улице. Дорога асфальтирована, до Минска 50 км от МКАД. Хорошее транспортное сообщение - маршрутки каждые полчаса по заявке отвозят в Минск и обратно. До г.Узда 7 км, также часто ходит транспорт.

Деревня большая, имеет общую баню, магазин, ФАП, живописнейшее и тихое место, возле деревни протекает река Уздянка, находится хвойный и смешанный лес, охотничьи угодья, грибные и ягодные места, недалеко возле леса расположено зарыбленное озеро. Идеальное место для жизни, отдыха и общения с природой.