Аренда двухкомнатной квартиры , на улице проспект Пушкина 38 в городе Минск

Опубликовано Apr 15, 2026 | Число просмотров: 3 | Номер: #345575

600$

или 563 € или 1955,4 бел.руб.
Область:   Минская область
Город:   Минск
Улица:   проспект Пушкина
Дом:   38
Тип аренды:   Квартиры
Комнат:   2
Описание

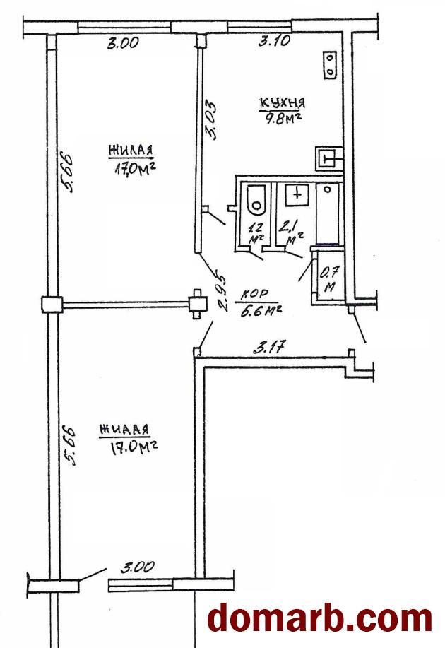
Сдается уютная двухкомнатная квартира на длительный срок. Свежий, хороший ремонт. Пол, потолок, стены - выровнены в уровень. Плитка, ламинат, новые двери, трубы, проводка, щиток, сантехника, кухня и тд. Установленны фильтра мех. очистки воды, бойлер, система защиты от протечек. Вся проводка новая, розетки на своих местах. Месторасположение: 2 минуты пешком до ст. м. Пушкинская. Общественный транспорт на любой вкус. В наличии вся необходимая техника: стиральная машина, микроволновая печь, варочная панель, духовой шкаф, холодильник, 2 телевизора с Android TV (онлайн сервисы, ютуб, онлайн кинотеатры), пылесос. Высокоскоростной интернет от A1. Вся необходимая посуда на кухне. Артопедический матрас. Да и в принципе, ВСЁ для комфортного проживания в наличии. Две просторные комнаты по 17 м2 и кухня 9,8 м2. В квартире прописан 1 человек - не высокие коммунальные платежи. Электричество, вода, газ - всё по счётчикам. В шаговой доступности ТЦ, магазины, аптеки и тд. С парковкой проблем нет. Этаж 9 из 9, с полноценным техническим этажем сверху, летом не жарко, по потолку никто не топает. Извините, но с учетом нового ремонта - без домашних животных. Не иностранцам. Агенства просьба не беспокоить. На длительный срок и только по Договору.

Область:   Минская область
Город:   Минск
Улица:   проспект Пушкина
Дом:   38
Тип аренды:   Квартиры
Комнат:   2
Удобства
  Мебель   Кухонная мебель
  Плита   Холодильник
  Стиральная машина   Телевизор
  Интернет   Лоджия или балкон
Контактная информация
Контактное имя: Продавец
Телефон: +375297822607
Все объявления этого пользователя

Посмотреть на карте


Описание

Сдается уютная двухкомнатная квартира на длительный срок. Свежий, хороший ремонт. Пол, потолок, стены - выровнены в уровень. Плитка, ламинат, новые двери, трубы, проводка, щиток, сантехника, кухня и тд. Установленны фильтра мех. очистки воды, бойлер, система защиты от протечек. Вся проводка новая, розетки на своих местах. Месторасположение: 2 минуты пешком до ст. м. Пушкинская. Общественный транспорт на любой вкус. В наличии вся необходимая техника: стиральная машина, микроволновая печь, варочная панель, духовой шкаф, холодильник, 2 телевизора с Android TV (онлайн сервисы, ютуб, онлайн кинотеатры), пылесос. Высокоскоростной интернет от A1. Вся необходимая посуда на кухне. Артопедический матрас. Да и в принципе, ВСЁ для комфортного проживания в наличии. Две просторные комнаты по 17 м2 и кухня 9,8 м2. В квартире прописан 1 человек - не высокие коммунальные платежи. Электричество, вода, газ - всё по счётчикам. В шаговой доступности ТЦ, магазины, аптеки и тд. С парковкой проблем нет. Этаж 9 из 9, с полноценным техническим этажем сверху, летом не жарко, по потолку никто не топает. Извините, но с учетом нового ремонта - без домашних животных. Не иностранцам. Агенства просьба не беспокоить. На длительный срок и только по Договору.

Вам может быть интересно