Продажа дома, на улице Центральная 37 в городе Слободка

Опубликовано Apr 16, 2026 | Число просмотров: 3 | Номер: #346375

23,000$

или 21582 € или 74957 бел.руб.
Область:   Витебская область
Город:   Слободка
Улица:   Центральная
Дом:   37
Тип аренды:   Дома, коттеджи
Комнат:   1
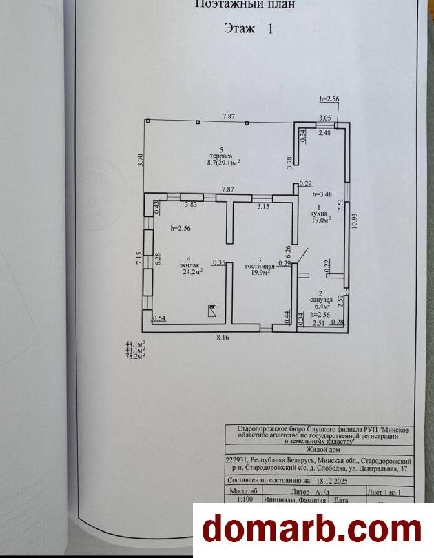
Общая площадь:   120
Жилая площадь:   44.00
Площадь кухни:   21.00
Ремонт:   Отделка деревом
Этаж:   1
Этажность дома:   1
Материал стен:   Бревенчатый
Год постройки:   2025
Материал крыши:   Черепица
Отопление:   Печное
Газ:   Баллон
Канализация:   Есть
Возможен торг:   Да
Уровней в доме:   1
Вода:   Колодец
Площадь участка:   20 соток
Собственность:   Частная собственность
Условия продажи:   Чистая продажа
Процент готовности:   90
Электроснабжение:   Есть
Описание

Стоимость актуальна до 30 апреля, пока действителен предварительный договор на интересующую меня недвижимость Дом полностью возведения в 2025 году — с душой. В нем есть две уютные комнаты площадью около 45 м², восстановленный фундамент. Общая площадь кухни, гардеробной и санузла — примерно 30 м², выполнены полностью новая электрика, щиток, всё согласовано по госту. Дом утеплён, есть печное отопление на 100 м³ — справляется в любой мороз, а при желании можно подвести газ. На кухне и в санузле пл

Область:   Витебская область
Город:   Слободка
Улица:   Центральная
Дом:   37
Тип аренды:   Дома, коттеджи
Комнат:   1
Общая площадь:   120
Жилая площадь:   44.00
Площадь кухни:   21.00
Ремонт:   Отделка деревом
Этаж:   1
Этажность дома:   1
Материал стен:   Бревенчатый
Год постройки:   2025
Материал крыши:   Черепица
Отопление:   Печное
Газ:   Баллон
Канализация:   Есть
Возможен торг:   Да
Уровней в доме:   1
Вода:   Колодец
Площадь участка:   20 соток
Собственность:   Частная собственность
Условия продажи:   Чистая продажа
Процент готовности:   90
Электроснабжение:   Есть
Удобства
  беседка   рядом лес
  сад   хозпостройки
  строительные материалы   Мебель
  Баня   Камин
Контактная информация
Контактное имя: Продавец
Телефон: +3592240484
Все объявления этого пользователя

Посмотреть на карте


Описание

Стоимость актуальна до 30 апреля, пока действителен предварительный договор на интересующую меня недвижимость Дом полностью возведения в 2025 году — с душой. В нем есть две уютные комнаты площадью около 45 м², восстановленный фундамент. Общая площадь кухни, гардеробной и санузла — примерно 30 м², выполнены полностью новая электрика, щиток, всё согласовано по госту. Дом утеплён, есть печное отопление на 100 м³ — справляется в любой мороз, а при желании можно подвести газ. На кухне и в санузле пл